EasyManua.ls Logo

Electra PXD912 - Page 56

Electra PXD912
159 pages
Print Icon
To Next Page IconTo Next Page
To Next Page IconTo Next Page
To Previous Page IconTo Previous Page
To Previous Page IconTo Previous Page
Loading...
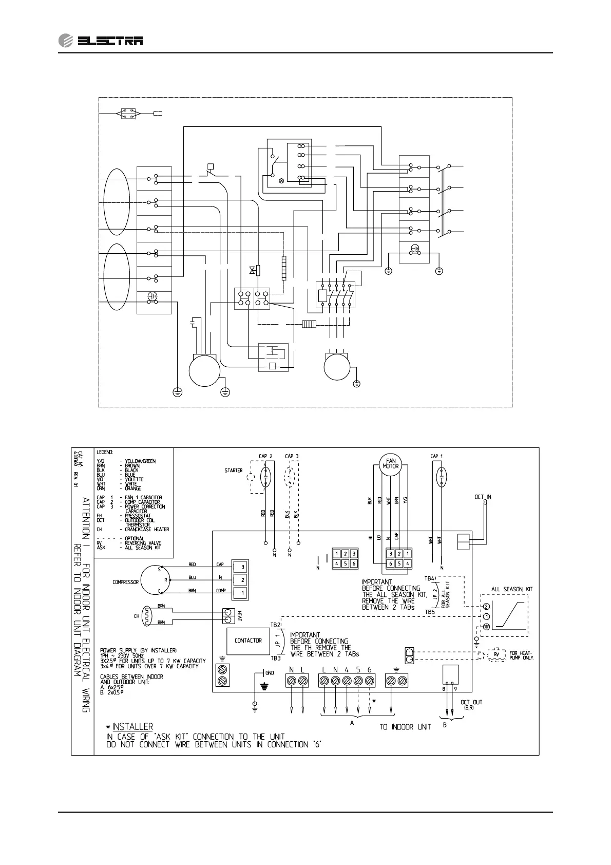
WIRING DIAGRAMS
7-3SM PXD 1-E.3 GB
7.5 Outdoor Unit: GC 18 3PH
7.6 Outdoor Unit: OU7-24 / OU8-30 1PH
COMP.HEATER
OG
LEGEND:
BK-BLACK
BU-BLUE
BN-BROWN
OG-ORANGE
RD-RED
WH-WHITE
PTCH--- PTC HEATER FOR DRAINING
WATER
P/N: 4527498/01
COMPRESSOR
FAN MOTOR
GN/YE GN/YE
~
M
6
5
BK
RELAY
7
8
GN/YE
~
M
2
4
BU
3
WH
WH
3
1
2
RD
BN
BU
U/T
W/T
V/T
A/C CONTACTOR
WIRING DIAGRAM OF OUTDOOR UNIT
BN
GN/YE
RD
A
BU
BN
RD
A1
5
3
21
CAP
BN-GC18RC
BK-GC24RC
RD
TERMINAL
VT
2
A2
22
6
4
VT
BN
BU
WH
KM
BK
N
BU
WH
L
RD
WH
BK
WH
4
WH
PTCH
4-W VALVE
BK
RD
BN
BU
BK
OG
B
W
BN
5
BK
BK
6
BN
P
BN
WH
A
BU
INDICATOR LIGHT
BU
N
BU
TERMINAL
ANTI-PHASE PROTECTOR
B
BU
U
V
RD
BK
GN/YE
GN/YE
N
BU
BU
BU
N
L1
OG
RD
380~400V
BK
L3
BN
BN
BN
L3
50Hz
BK
L2
RD
BK
L2
3PH
TERMINAL
L1
DEICER TEMP.
SENSOR RT3
8
XT3
9
YE-YELLOW
GND-GROUND
CAP-CAPACITOR
COMP-COMPRESSOR
GN/YE-YELLOW/GREEN
P-PRESSURE SWITCH
---OPTINONAL
CONTENT

Related product manuals