EasyManua.ls Logo

Electrolux EFC925SAR - Rangehood Installation

Electrolux EFC925SAR
13 pages
Print Icon
To Next Page IconTo Next Page
To Next Page IconTo Next Page
To Previous Page IconTo Previous Page
To Previous Page IconTo Previous Page
Loading...
6
RANGEHOOD INSTALLATION
WARNING!
Refer to “Safety information” chapter.
BEFORE INSTALLATION
Before the installation of the appliance, record the information
below from the rating plate. The rating plate is on the bottom
of the appliance casing.
Model
PNC
Serial number
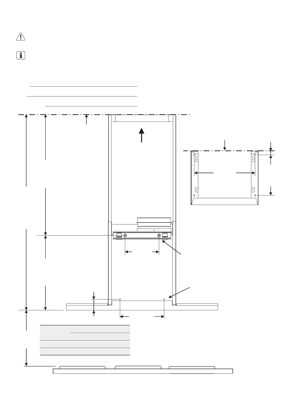
1.
2.
Using a spirit level mark a vertical centre line on the wall
where the hood is to be positioned, and a horizontal line
at the hood base position (refer diagram below).
NOTE: The height of the underside of the hood body must
be a minimum of 600mm* to a maximum height of 800mm.
* If the instructions of the hob specify a greater distance than the minimum above,
then that shall be the minimum height for installation.
Mark the location for flue cover wall mounting brackets
and cooker hood mounting points and anti-tilt fixing
points above the hood base using the hood base as
the reference point (Fig. 6).
Top of hob
Max. 1158 mm
ceiling
View A
View A
200 mm
260 mm
441 mm
DIM. A
240 mm 21 mm
58 mm
718 mm
ŝŶƐƚĂůůĂƟŽŶǁĂůů
360 mm
Fig. 6
Cooktop
type
DIM. A
minimum* maximum
Gas 650mm 800mm
Electric 600mm 800mm
Anti-tilt fixing points
Range hood mounting points

Related product manuals