EasyManua.ls Logo

Electrolux EI27MO45GSA - Page 29

Electrolux EI27MO45GSA
52 pages
Print Icon
To Next Page IconTo Next Page
To Next Page IconTo Next Page
To Previous Page IconTo Previous Page
To Previous Page IconTo Previous Page
Loading...
Troubleshooting and Testing
3-11
Procedure
Letter
L
N
Component Test
DEFROST TEST
WARNING : The oven should be fully assembled before following procedure.
1. Place one cup of water in the center of the turntable tray in the oven cavity.
2. Close the door.
3. Touch the “ DEFROST “ pad, then number 2.
4. The oven is in Defrost Center cooking condition.
5. The oven will operate as follows:
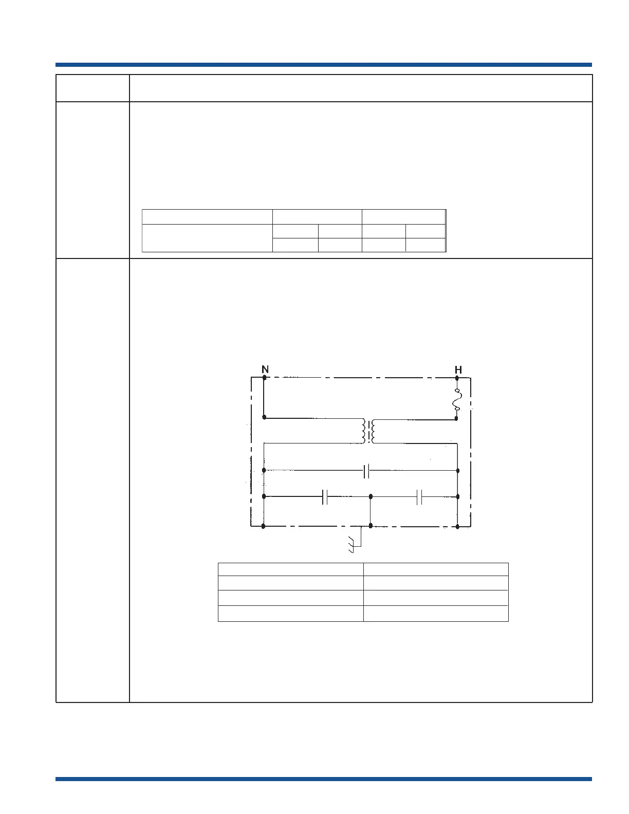
NOISE FILTER TEST
1. Disconnect the power supply cord, and then remove outer case.
2. Open the door and block it open.
3. Discharge high voltage capacitor.
4. Disconnect the leads to the primary of the power transformer.
5. Using an ohm-meter, check between the terminals as described in the following table:
If incorrect readings are obtained, replace the noise filter.
6. Reconnect all leads removed from components during testing.
7. Re-install the outer case (cabinet).
8. Reconnect the power supply cord after the outer case is installed.
9. Run the oven and check all functions.
MENU 1ST STAGE 2ND STAGE
STEAKS/CHOPS/FISH LEVEL TIME LEVEL TIME
0.5lb 60% 57sec. 40% 22sec.
MEASURING POINT
INDICATION OF OHM-METER
Between N and H
Open Circuit
Between terminal N and GRY
Short Circuit
Between terminal H and RED
Short Circuit
NOISE FILTER UNIT
MONITOR
FUSE
NOISE SUPPRESSION COIL
LINE CROSS CAPACITOR
0.22uF/AC 250V
LINE BYPASS CAPACITOR
LINE BYPASS CAPACITOR
0.0033uF/AC 125V
0.0033uF/AC 125V
RED
GR
Y

Table of Contents

Other manuals for Electrolux EI27MO45GSA

Related product manuals