EasyManua.ls Logo

Electrolux EOB6631 - Care and Cleaning Procedures

Electrolux EOB6631
72 pages
Print Icon
To Next Page IconTo Next Page
To Next Page IconTo Next Page
To Previous Page IconTo Previous Page
To Previous Page IconTo Previous Page
Loading...
TYPE OF DISH Core temperature [°C]
Trout / Sea bream 65 - 70
Tuna fish / Salmon 65 - 70
10. CARE AND CLEANING
WARNING!
Refer to the Safety chapters.
Clean the front of the appliance with a
soft cloth with warm water and a clean-
ing agent.
To clean metal surfaces use a usual
cleaning agent.
Clean the oven interior after each use.
Then you can remove dirt more easily
and it does not burn on.
Clean stubborn dirt with a special oven
cleaner.
Clean all oven accessories after each
use and let them dry. Use a soft cloth
with warm water and a cleaning agent.
If you have nonstick accessories, do
not clean them using aggressive
agents, sharp-edged objects or a dish-
washer. It can destroy nonstick coating.
Stainless steel or aluminium
appliances:
Clean the oven door with a wet
sponge only. Dry it with a soft
cloth.
Do not use steel wool, acids or
abrasive materials, as they can
cause damage to the oven sur-
face. Clean the oven control panel
with the same precautions.
10.1 Cleaning the door gasket
Regularly do a check of the door gas-
ket. The door gasket is around the
frame of the oven cavity. Do not use the
appliance if the door gasket is dam-
aged. Contact the Service Centre.
To clean the door gasket, refer to the
general information about cleaning.
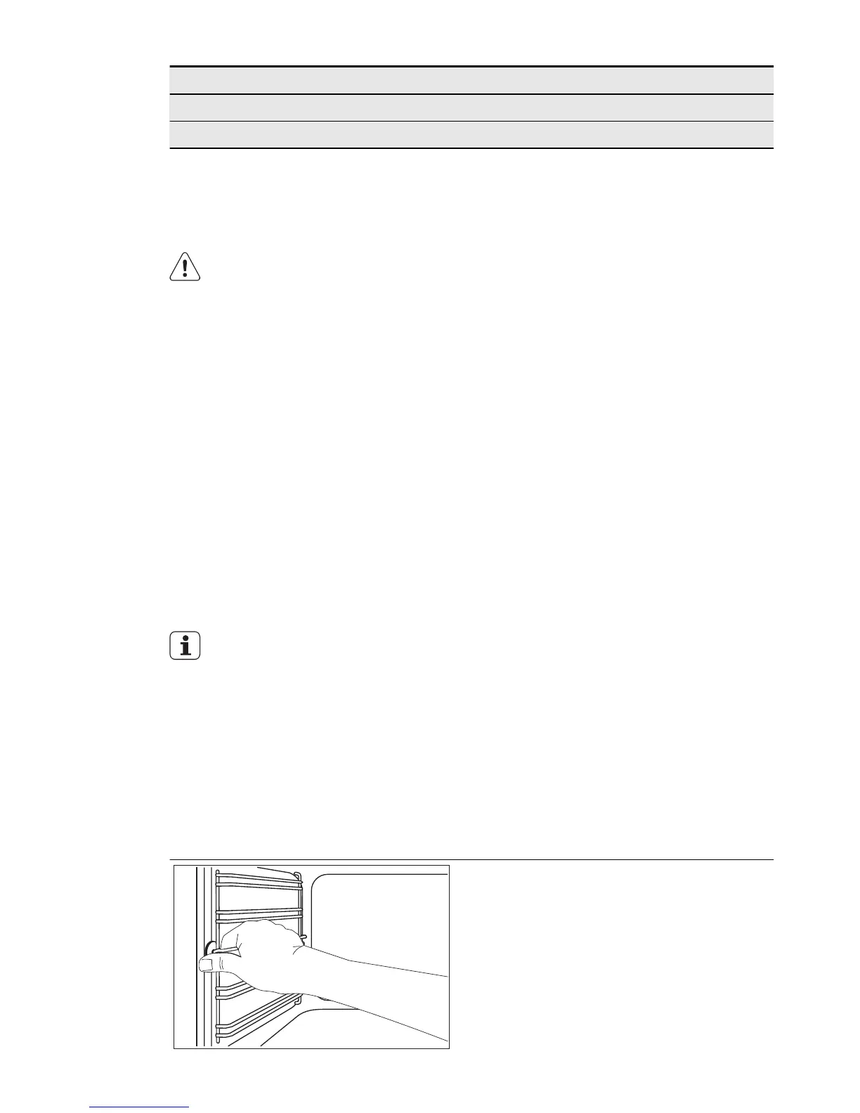
10.2 Shelf supports
You can remove the shelf supports to
clean the side walls.
Removing the shelf supports
1.
Pull the front of the shelf support away
from the side wall.
30
www.electrolux.com

Related product manuals