EasyManua.ls Logo

Electrolux Unic Tango Ace - Hydraulic Circuit ACE MT

Electrolux Unic Tango Ace
124 pages
Print Icon
To Next Page IconTo Next Page
To Next Page IconTo Next Page
To Previous Page IconTo Previous Page
To Previous Page IconTo Previous Page
Loading...
38
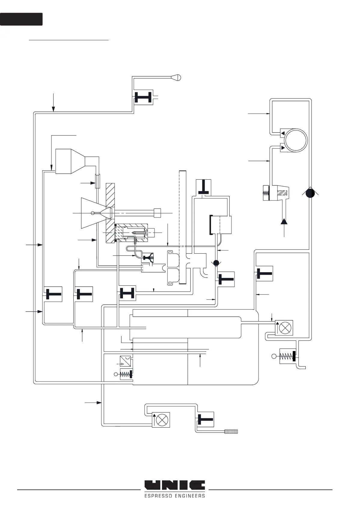
Hydraulic circuit ACE MT
ID-75
ID-75
FR-6521
12/18
304
CIRCUIT HYDRAULIQUE MT
HYDRAULIC CIRCUIT MT
PRESSURE SENSOR
CAPTEUR DE PRESSION
LP VALVE
SOUPAPE BP
EVRE
EVBEC
EVSV
EVDK
EVNK
EVSE
EVK.G
EVAE.G
HP VALVE
SOUPAPE HP
PROBES
SONDES
LEFT COFFE EV
EV
CAFE GAUCHE
DRAIN EV
EV VIDANGE DECOMPRESSION
LEFT WATER ADDITION EV
EV AJOUT EAU GAUCHE
HOT WATER OUTLET
SORTIE EAU CHAUDE
HOT WATER EV
EV EAU CHAUDE
HOT WATER DOSER
DOSEUR EAU CHAUDE
INTERNAL BOILER
CHAUDIERE INTERNE
STEAM/COFFEE BOILER
CHAUDIERE CAFE/VAPEUR
STEAM EV
EV VAPEUR
COFFEE CLEANING EV
EV NETTOYAGE CAFE
DRAIN
VIDANGE
LEFT UNIT DOSER
DOSEUR GROUPE GAUCHE
FILLER EV
EV REMPLISSAGE
CLEANING COLLECTOR
BLOC PASTILLE
FEEDING WATER
ALIMENTATION EAU
NO WATER SAFETY
SECURITE MANQUE EAU
PUMP
POMPE
NO RETURN VALVE
CLAPET ANTI RETOUR
SPOUT EV
EV DE BEC
FR6520
ADJUSTABLE MIXER EV
EV REGLABLE MELANGEUR
FR6513
TG-6560 TG-6561
FR-6052
FR-6062
FR-6060
FR-6064
FR6058
FR-6050
FR-6061
SORTIE VAPEUR
MELANGEUR
STEAM OUTLET
MIXER
TG-6564
TG-6562
FR-6059
EVMIX
GICLEUR Ø2.5
JET Ø2.5

Table of Contents

Related product manuals