EasyManua.ls Logo

ELGi EGRD 600 - Egrd 1552 - 2900

ELGi EGRD 600
56 pages
Print Icon
To Next Page IconTo Next Page
To Next Page IconTo Next Page
To Previous Page IconTo Previous Page
To Previous Page IconTo Previous Page
Loading...
Attachments
40 – EN EGRD 600 – 2900
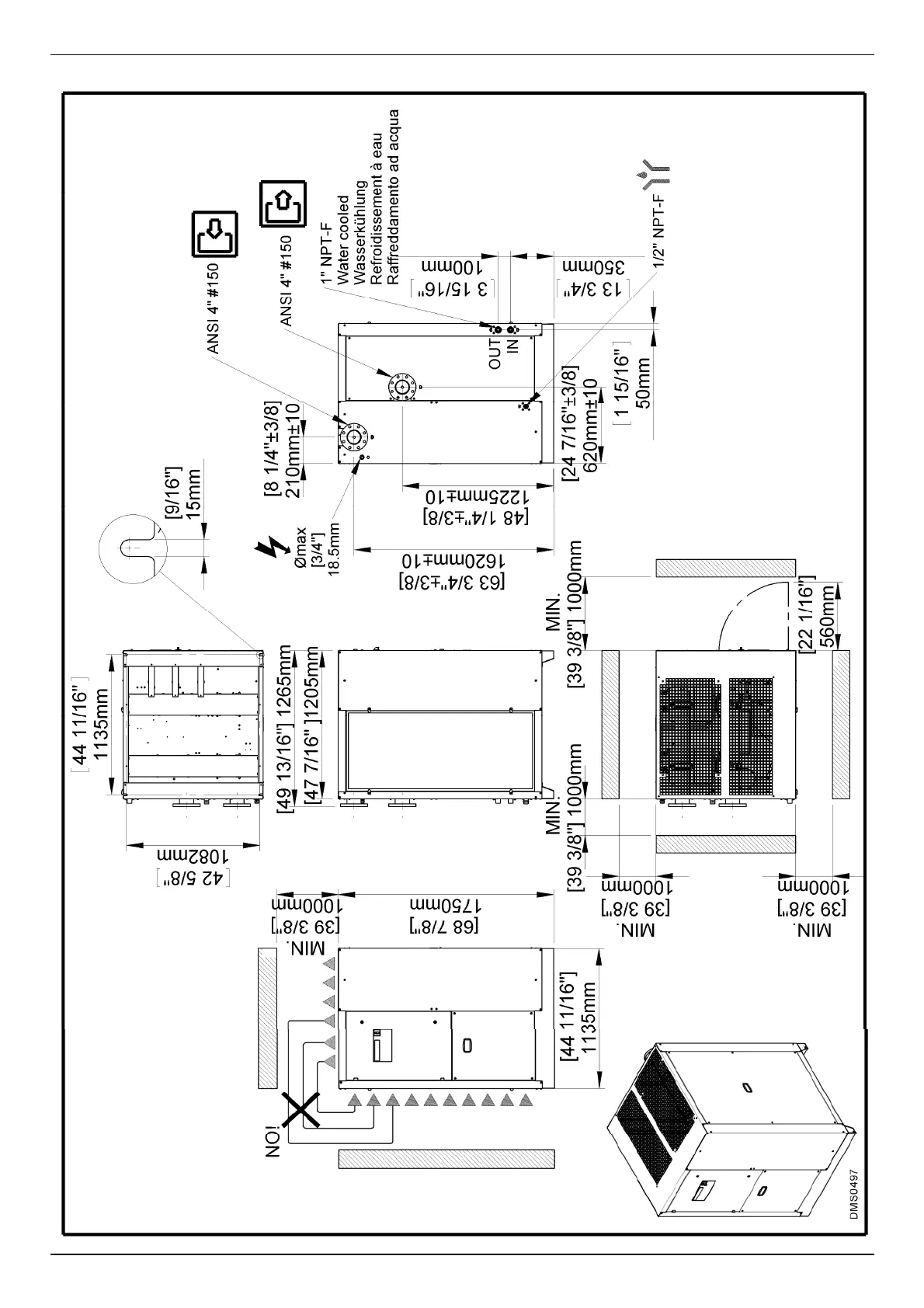
9.1.2 EGRD 1552 – 2900

Table of Contents