EasyManua.ls Logo

ELGi EGRD 600 - EGRD 1552 - 2900 Sheet 3 of 4

ELGi EGRD 600
56 pages
Print Icon
To Next Page IconTo Next Page
To Next Page IconTo Next Page
To Previous Page IconTo Previous Page
To Previous Page IconTo Previous Page
Loading...
Attachments
50 – EN EGRD 600 – 2900
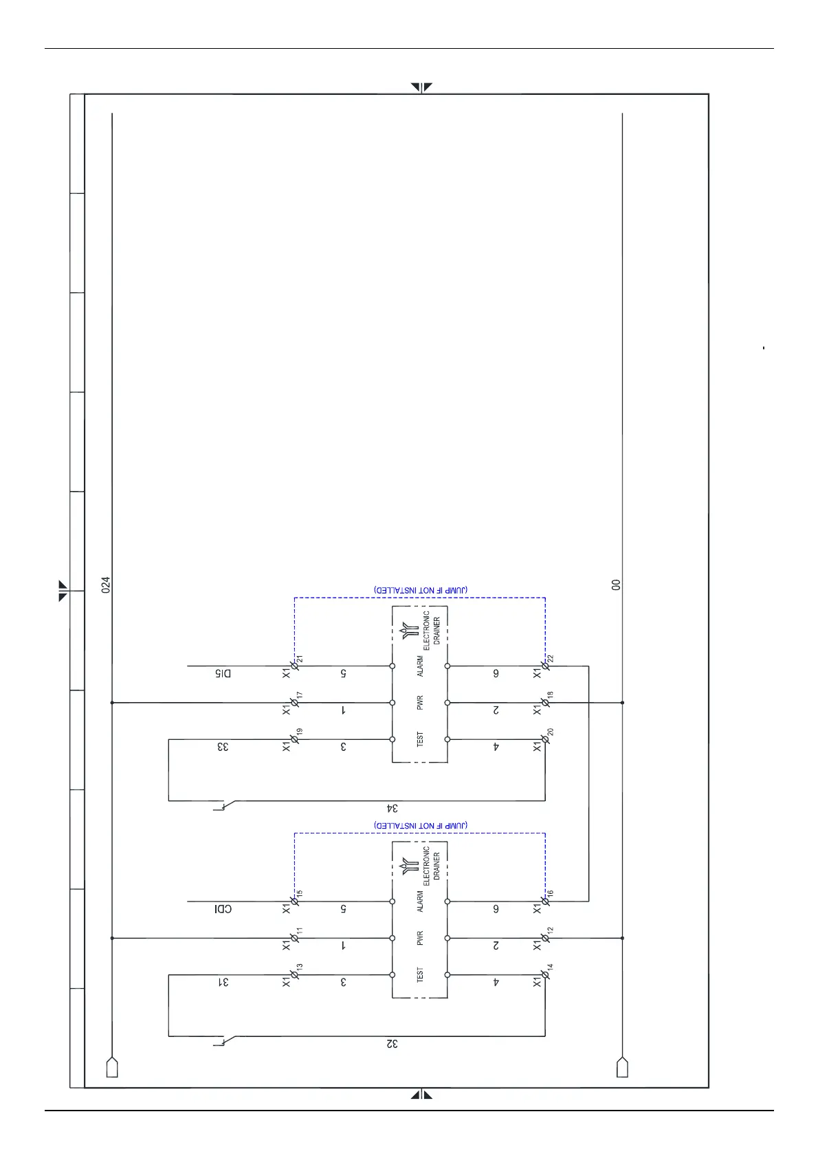
9.3.6 EGRD 1552 – 2900 Sheet 3 of 4
0
1
3
24
56789
Rev.
Note :
Sheet
03
of
Drawing no. :
04
00
Technical modifications are subject to change without notice; errors not excluded.
FRUCT5478QCD120
B
A
[2-8]
[2-8]
ELD1 ELD2
X3.2
X3.1
GND
IN1
X1.2
X1.1
N/-
L/+
X2.2
X2.1
CO
NO
X3.2
X3.1
GND
IN1
X1.2
X1.1
N/-
L/+
X2.2
X2.1
CO
NO
2422
21
KDR
[2-5]
1412
11
KDR
[2-5]

Table of Contents