EasyManua.ls Logo

Empire DVX36FP31L-4 - Rf Wiring Diagram

Empire DVX36FP31L-4
80 pages
Print Icon
To Next Page IconTo Next Page
To Next Page IconTo Next Page
To Previous Page IconTo Previous Page
To Previous Page IconTo Previous Page
Loading...
31449-4-1113 Page 63
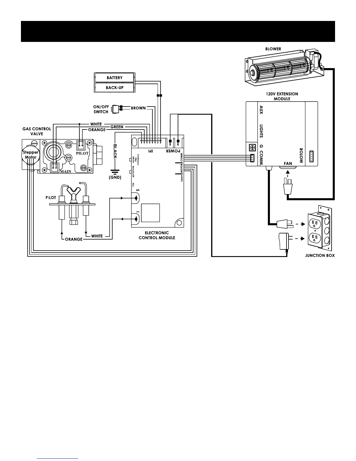
Figure 74
RF WIRING DIAGRAM
NOTICE: For "RF" Fireplace models with Premium Multi-Function Remote Control, Refer to the separate instructions for operation of
the remote control system.

Table of Contents

Related product manuals