EasyManua.ls Logo

Enerzone Solution 2.3 - Page 16

Default Icon
48 pages
Print Icon
To Next Page IconTo Next Page
To Next Page IconTo Next Page
To Previous Page IconTo Previous Page
To Previous Page IconTo Previous Page
Loading...
Page 16
Installation and Operation Requirements - Solution 2.3
ENGLISH
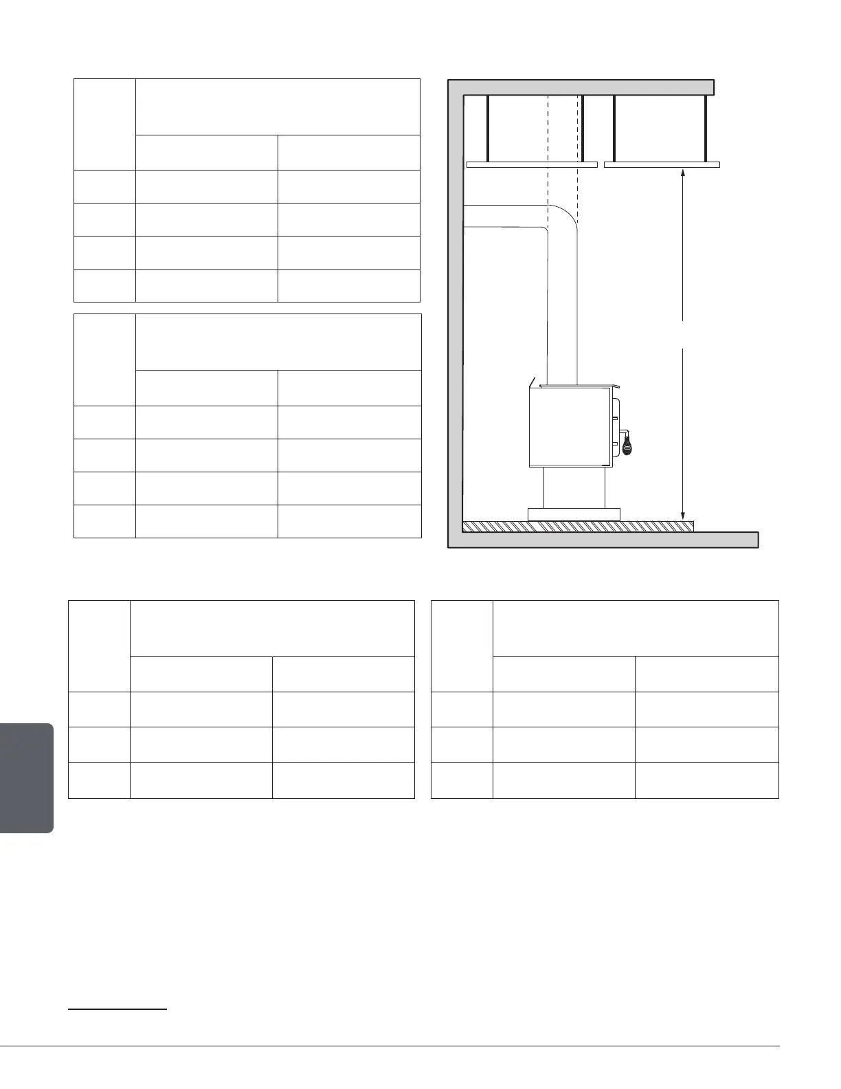
3.1.2 With Lowered Ceiling
APPLIANCE CLEARANCES WITH SINGLE
WALL PIPE CONNECTOR
Canada USA
A 14 ½" (368 mm) 11" (279 mm)
B 19" (483 mm) 18" (457 mm)
C 10" (254 mm) 10" (254 mm)
L 77" (196 cm) 77" (196 cm)
Ve
Ho
L
APPLIANCE CLEARANCES WITH DOUBLE
WALL PIPE CONNECTOR
Canada USA
A 9" (229 mm) 9" (229 mm)
B 19" (483 mm) 19" (483 mm)
C 7" (178 mm) 7" (178 mm)
L 77" (196 cm) 77" (196 cm)
If the above clearances are met, then the distances measured from the flue outlet will be:
DISTANCES
17
FROM PIPE CONNECTOR
WITH SINGLE WALL PIPE CONNECTOR
DISTANCES
17
FROM PIPE CONNECTOR
WITH DOUBLE WALL PIPE CONNECTOR
Canada USA Canada USA
D 18" (457 mm) 14 ½" (368 mm) D 12 ¼" (311 mm) 12 ¼" (311 mm)
E 28 ½" (724 mm) 27 ½" (699 mm) E 28 ¼" (718 mm) 28 ¼" (718 mm)
F 19 ¾" (502 mm) 19 ¾" (502 mm) F 16 ½" (419 mm) 16 ½" (419 mm)
17
The pipe distances listed in this table refer to the distances obtained when the stove is installed in accordance with the appliance clearances
above mentioned.

Other manuals for Enerzone Solution 2.3