EasyManua.ls Logo

Erato GP20+ - Page 45

Erato GP20+
46 pages
Print Icon
To Next Page IconTo Next Page
To Next Page IconTo Next Page
To Previous Page IconTo Previous Page
To Previous Page IconTo Previous Page
Loading...
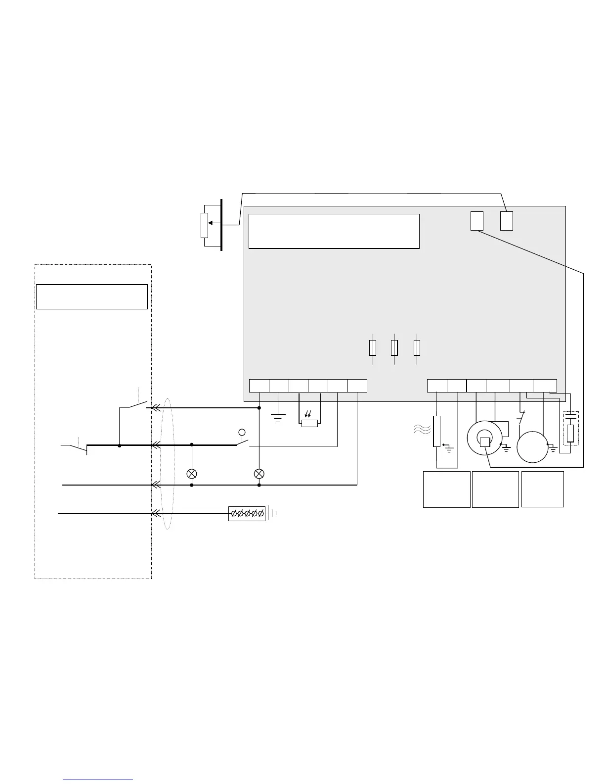
Instruction manual for installation and operation of automatic pellet burner “ERATO GP20+”
(Version : 02.02.2010 10:36) p. 45/50
K
K
K
K
K
K
K
K
K
K1
K1
K1
T
o
operating
thermostat
Ignition
element
Fan
Pellet
feed
auger
N 220
V
Neutral
L 220
V
Phase
PE
Pellet burner control board
Photosensor
T
0
alarm
thermostat –
heat consumer
HEAT CONSUMER
Power
Start
Green/yelow
Gray or blue
Black
Brown
F2 F3 F4
F2- T6,3A – Ignition element
F3- FF 800mAH – Fan
F4- FF1,0 AH – Pellet feed auger
Assembling
control
Cable
Thermodisk
Figure 6.1. Principal electrical scheme of automatic pellet burner “ERATO GP20+”
(
Version Januar
y
2010
)

Table of Contents