EasyManua.ls Logo

ESAB A2 TFE1 - Page 38

ESAB A2 TFE1
44 pages
Print Icon
To Next Page IconTo Next Page
To Next Page IconTo Next Page
To Previous Page IconTo Previous Page
To Previous Page IconTo Previous Page
Loading...
-- 3 8 --
dha4r11a
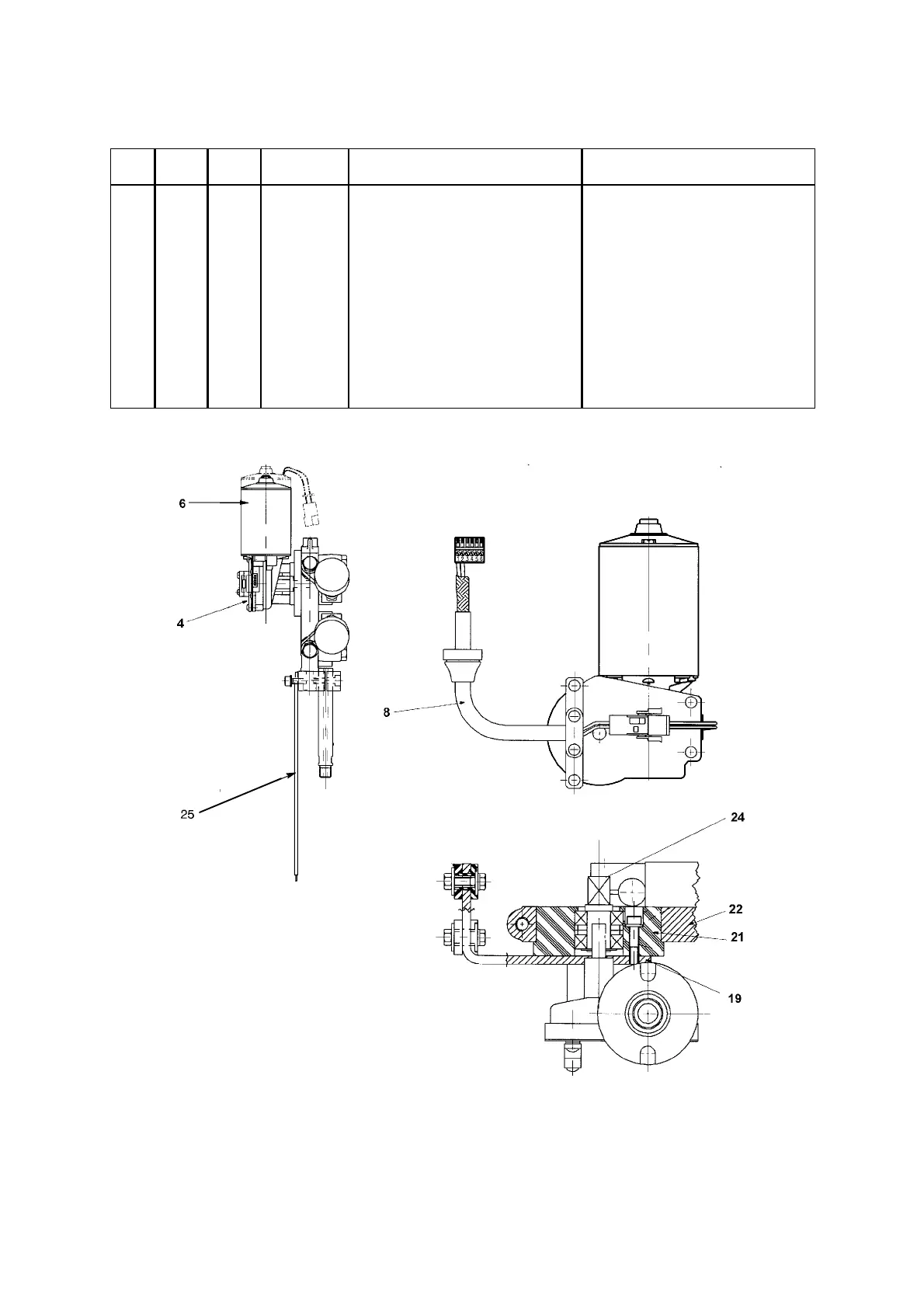
Item
no.
Qty. Qty. Ordering no. Denomination Notes
X
X
0456 495 888
0456 495 889
Wire feeder unit
Wire feeder unit
36 rpm
68 rpm
4 1 1 0334 339 001 Cable fixture
6 1
1
0334 678 001
0334 678 002
Motor 24 V
Motor gear
36 rpm
68 rpm
8 1 1 0456 493 881 Control cable L=1,5
19 1 1 0413 517 001 Bracket Motor Attachment
21 1 1 0413 072 881 Bearing housing
22 1 1 0147 639 882 Straightener right D=20
24 1 1 0218 810 183 Insulated hand wheel
25 1 1 0456 504 880 Arc welding cable