EasyManua.ls Logo

ESAB A2 TFE1 - 4 Ðàáîòà; Îáùåå

ESAB A2 TFE1
44 pages
Print Icon
To Next Page IconTo Next Page
To Next Page IconTo Next Page
To Previous Page IconTo Previous Page
To Previous Page IconTo Previous Page
Loading...
dha4d1ra
-- 9 --
ÑÂÀÐÊÀ Â ÇÀÙÈÒÍÛÕ ÃÀÇÀÕ
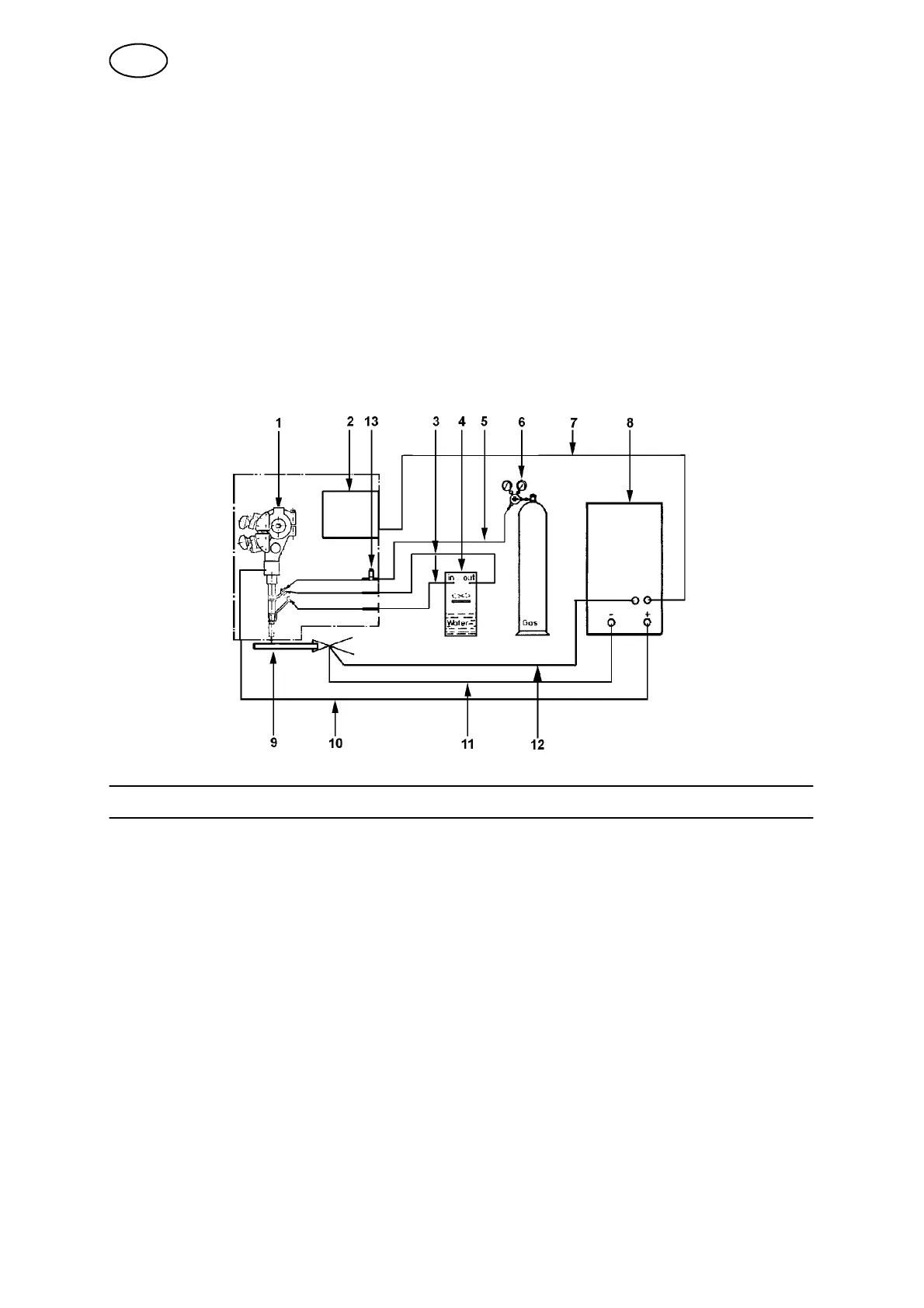
S Ïîäñîåäèíèòå êàáåëü óïðàâëåíèÿ(7) ê èñòî÷íèêó ïèòàíèÿ(8) è ê áëîêó
óïðàâëåíè ÿ A2-A6 PEH(2).
S Ïîäñîåäèíèòå îáðàòíûé êàáåëü(11) ê èñòî÷íèêó ïèòàíèÿ(8) è ê çàãîòîâêå(9).
S Ïîäñîåäèíèòå ñâàðî÷íûé êàáåëü(10) ê èñòî÷íèêó ïèòàíèÿ(8) è ê
ñâàðî÷íîìó òðàêòîðó(1 ).
S Ïîäñîåäèíèòå ãàçîâûé øëàíã(5) ê ðåäóêòîðó (6) è ê ãàçîâîìó íèïïåëþ (13)
íà ñâàðî÷íîì òðàêòîðå.
S Ïîäñîåäèíèòå øëàíãè îõëàæäàþùåé æèäêîñòè(3) ê áëîêó îõëàæäåíèÿ (4)
è ê ñâàðî÷íîìó òðàêòîðó(1).
S Ïîäñîåäèíèòå êàáåëü îáðàòíîé ñâÿçè(12) ê èñòî÷íèêó ïèòàíèÿ(8) è ê
çàãîòîâêå(9).
ÀÁÎÒÀ
4.1 Îáùåå
Îáùèå ìåðû ïðåäîñòîðîæíîñòè ïðè ðàáîòå ñ îáîðóäîâàíèåì îïèñàíû
íà ñòð. 4. Ïðî÷òèòå èõ ïå ðå ä òå ì, êàê íà÷àòü ðàáîòó!
S Ä ëÿ ïîëó÷åíèÿ êà÷åñòâåííîãî øâà íåîáõîäèìà òùàòåëüíàÿ ïîäãîòîâêà
ïîâåðõíîñòåé ñâàðèâàåìûõ äåòàëåé.
ÂÍÈÌÀÍÈÅ! Çàçîð â ñîåäèíåíèè äîëæåí áûòü îäèíàêîâûì ïî âñåé ä ëèíå
øâà.
S Äëÿ ñíèæåíèÿ ðèñêà îáðàçîâàíèÿ òðåùèí øèðèíà øâà äîëæíà áûòü
áîëüøå ãëóáèíû ïðîïëàâëåíèÿ.
S Âñåãäà ïðîâîäèòå ïðîáíóþ ñâàðêó íà îáðàçöàõ ñ òàêîé æå ðàçäåëêîé è
òîëùèíîé ëèñòà êàê è ñâàðèâàåìûõ äåòàëåé.
S Ðåãóëèðîâêà ñâàðî÷íûõ ïàðàìåòðîâ è óïðàâëåíèå ñâàðî÷íûì òðàêòîðîì è
èñòî÷íèêîì ïèòàíèÿ îïèñàíî â èíñòðóêöèè ïî ýêñïëóàòàöèè áëîêà
óïðàâëåíèÿ À2-À6 ÐÅÍ.
RU