EasyManua.ls Logo

ESAB A2 TFE1 - 4 Operation; General; Starting Work

ESAB A2 TFE1
44 pages
Print Icon
To Next Page IconTo Next Page
To Next Page IconTo Next Page
To Previous Page IconTo Previous Page
To Previous Page IconTo Previous Page
Loading...
-- 2 3 --
dha4d1ea
ARC WELDING MIG/MAG
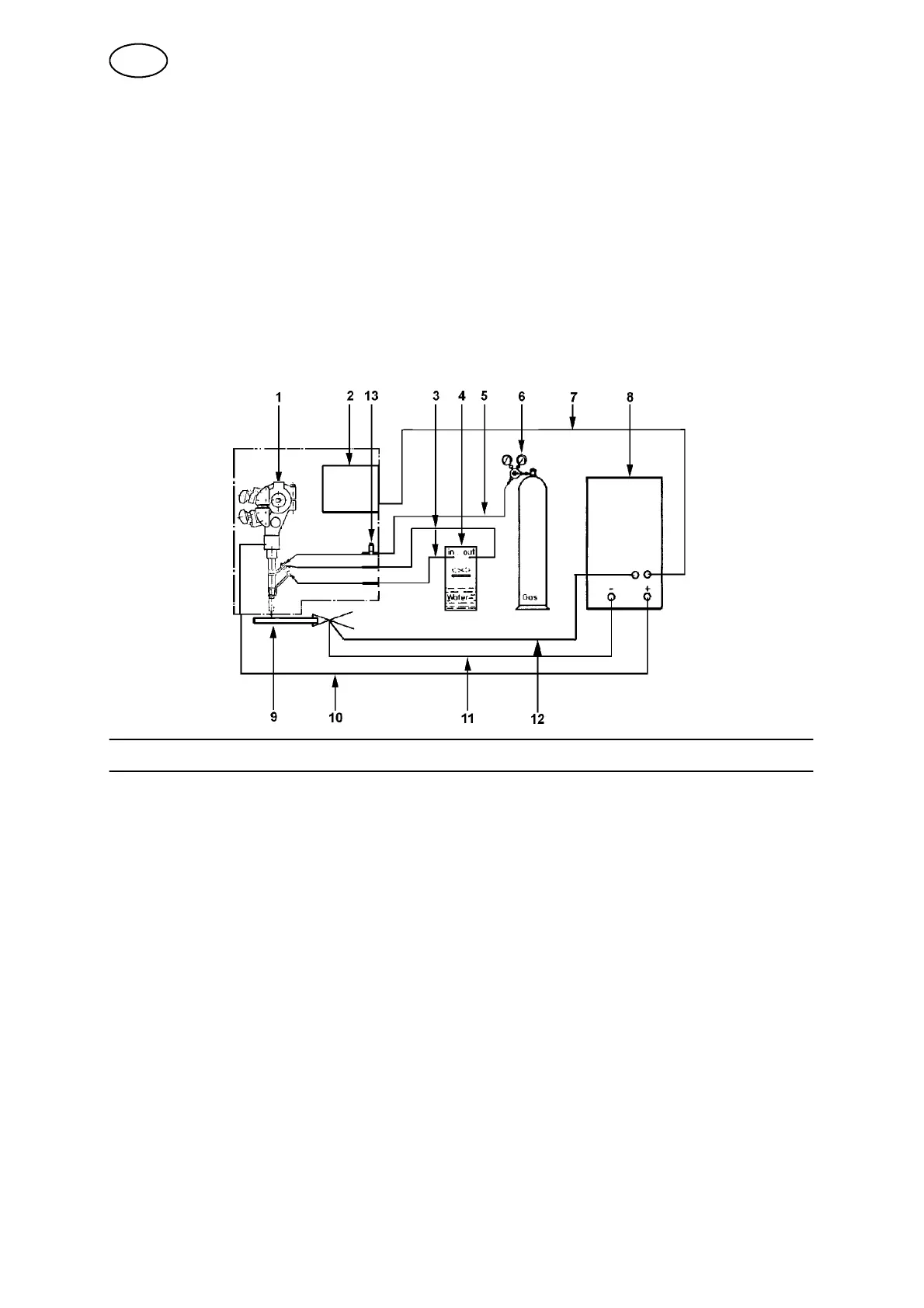
S Connect the control cable (7) between the power source (8) and control box
A2--A6 Process Controller (PEH) (2).
S Connect the return cable ( 11) between the power source (8) and work piece
(9).
S Connect the welding cable (10) between the power source (8) and the
welding machine (1).
S Connect the gas hose (5) between the reducer valve (6) and the gas
connection (13) on the welding machine.
S Connect the cooling water hoses (3) between the cooling unit (4) and the
welding machine (1).
S Connect the measurement cable (12) between the power source (8) and
workpiece (9).
4 OPERATION
4.1 General
General safety regulations for the handling of the equipment appear from
page 18. Read through before you start using the equipment!
S Thorough preparation of the weld surfaces is necessary to achieve a good weld.
NOTE! The width of the weld joint gap must be uniform.
S To minimise the risk of heat crack formation, the width of the weld must be
greater than the penetration depth.
S Always carry out a test weld with the same joint type and sheet thickness as the
production work piece.
S For control and adjustment of the automatic welding machine and welding power
supply, see the instruction manual for the A2--A6 Process Controller (PEH).
4.2 Starting work
1. Select electrode type and flux powder or shielding gas so that the weld material
is as close as possible to the analysis of the base metal. Select electrode size
and welding data in accordance with the values recommended by the welding
materials supplier.
GB