EasyManua.ls Logo

ESAB A2 TFE1 - Page 43

ESAB A2 TFE1
44 pages
Print Icon
To Next Page IconTo Next Page
To Next Page IconTo Next Page
To Previous Page IconTo Previous Page
To Previous Page IconTo Previous Page
Loading...
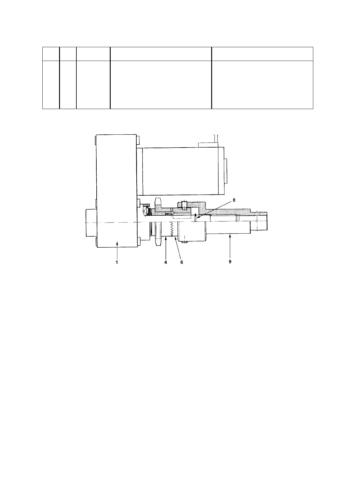
-- 4 3 --
dha4r11a
Item
no.
Qty. Ordering no. Denomination Notes
0332 990 880 Motor & gear carriage
1 1 0332 967 880 Motor C/W gearbox
4 1 0332 968 880 Sprocket complete
6 1 0332 971 001 Coupling
8 1 0215 701 009 Circlip
9 1 0332 972 001 Shaft for gear