EasyManua.ls Logo

ESAB EMP 285ic 1ph - Page 101

ESAB EMP 285ic 1ph
107 pages
Print Icon
To Next Page IconTo Next Page
To Next Page IconTo Next Page
To Previous Page IconTo Previous Page
To Previous Page IconTo Previous Page
Loading...
DIAGRAMS
10-2
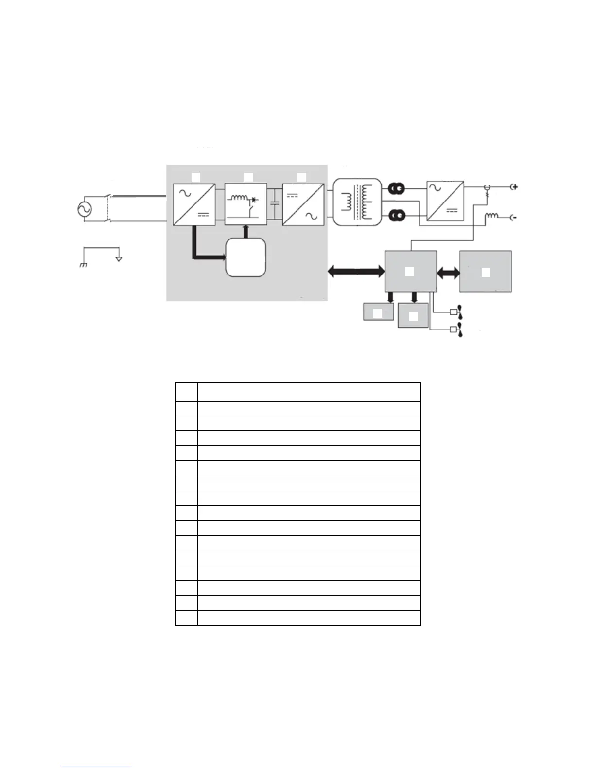
A.2 Functional Block Diagram 1 ph
#
DESCRIPTION
1
Main Power Switch with thermal breaker
2
Primary Rectifier on Power Board
3
Boost PFC
4
Primary Inverter on Power Board
5
Main Transformer
6
Ferrite Rings
7
Output Diode Assembly
8
Current Sensor
9
Output Inductor
10
Internal Power Supply on Power Board
11
Control Board
12
User Interface (UI)
13
Wire Feeder
14
Gas Valves
15
Fans
2
3
4
5
7
8
9
10
11
12
13
14
15
1
6

Table of Contents

Related product manuals