EasyManua.ls Logo

ESAB Feed 3004 - Page 22

ESAB Feed 3004
34 pages
Print Icon
To Next Page IconTo Next Page
To Next Page IconTo Next Page
To Previous Page IconTo Previous Page
To Previous Page IconTo Previous Page
Loading...
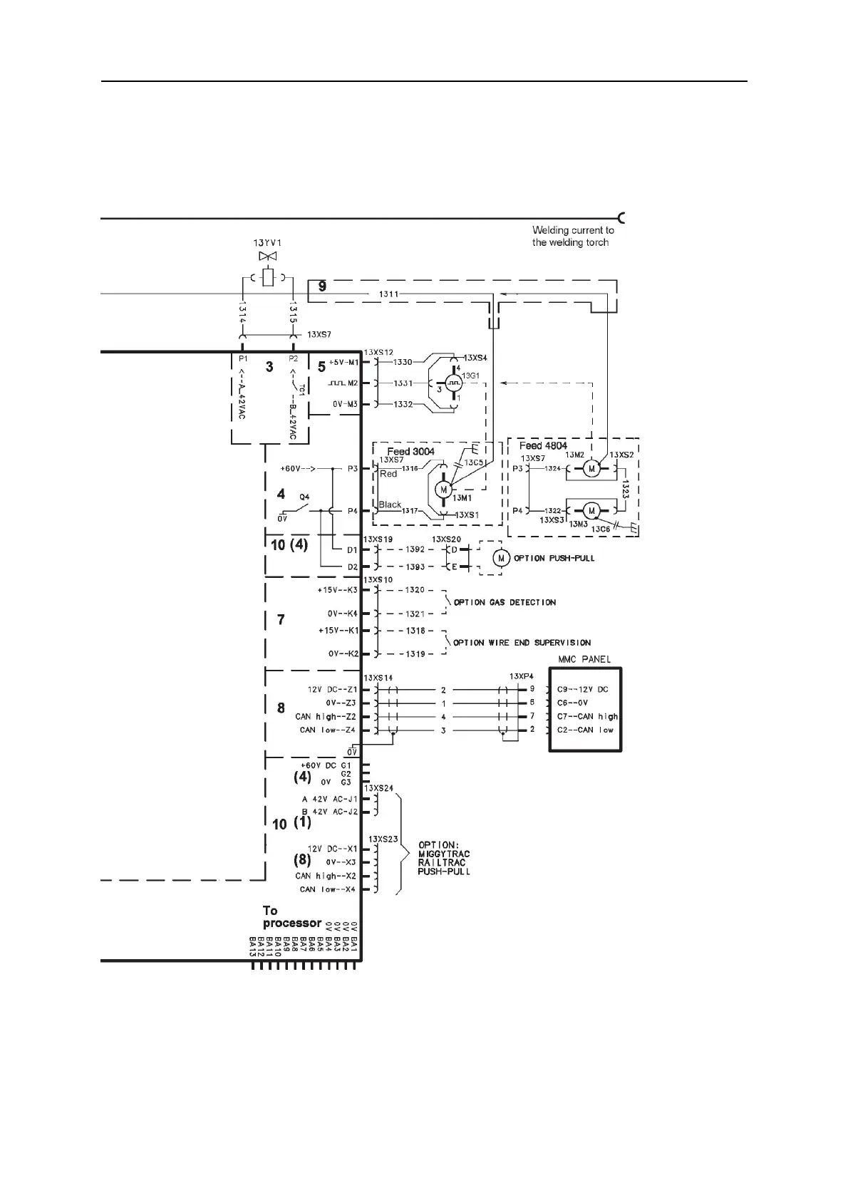
DIAGRAM
0444 408 331
- 22 -
© ESAB AB 2020

Related product manuals