EasyManua.ls Logo

Escea DF700 - Normal Operating Sounds and Smells; Cleaning the Glass

Escea DF700
58 pages
Print Icon
To Next Page IconTo Next Page
To Next Page IconTo Next Page
To Previous Page IconTo Previous Page
To Previous Page IconTo Previous Page
Loading...
B
A C D E F G SERVICE
44
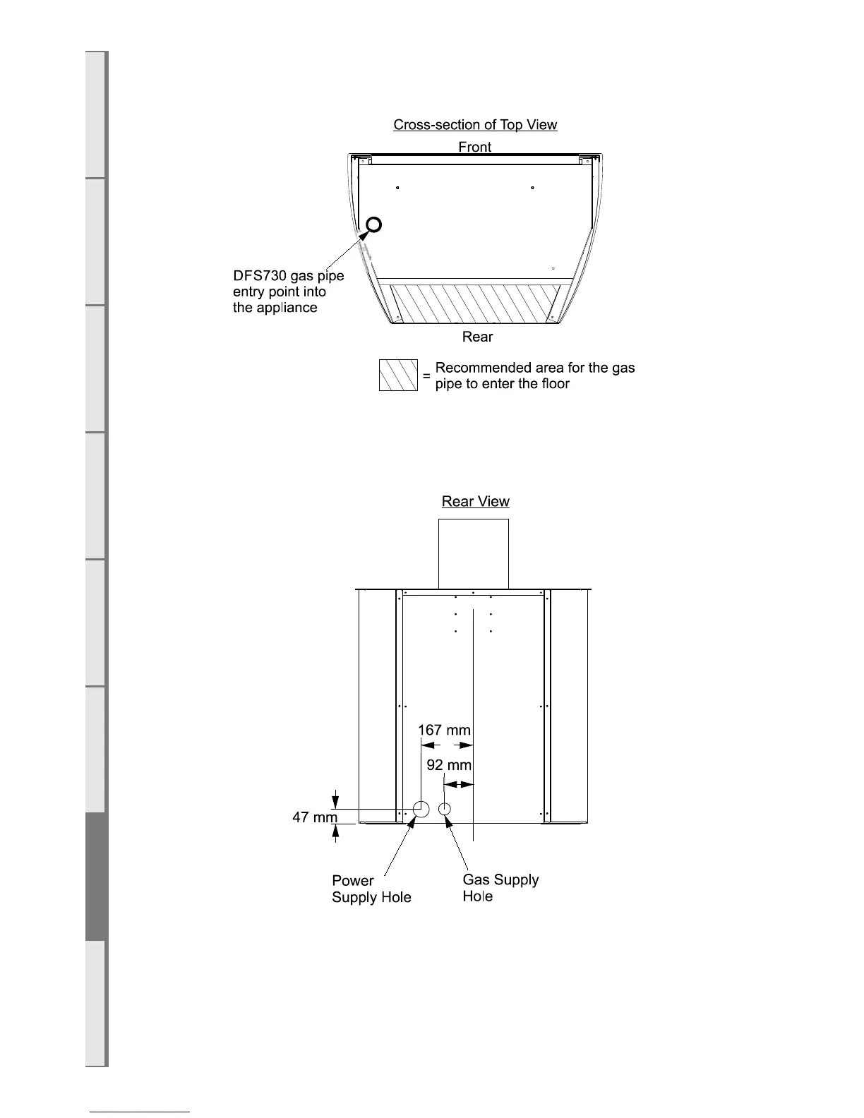
G4 Gas pipe Routing Information

Table of Contents

Other manuals for Escea DF700

Related product manuals