EasyManua.ls Logo

ESP Ecocent 300L - 6.4 Cold Water Supply

ESP Ecocent 300L
40 pages
Print Icon
To Next Page IconTo Next Page
To Next Page IconTo Next Page
To Previous Page IconTo Previous Page
To Previous Page IconTo Previous Page
Loading...
12of 36
ESP400-10-200L and 300L
maximised through careful design and heat use planning. The supplier/installer of your Ecocent unit should
always be prepared to assist you with this.
6.0 INSTALLATION
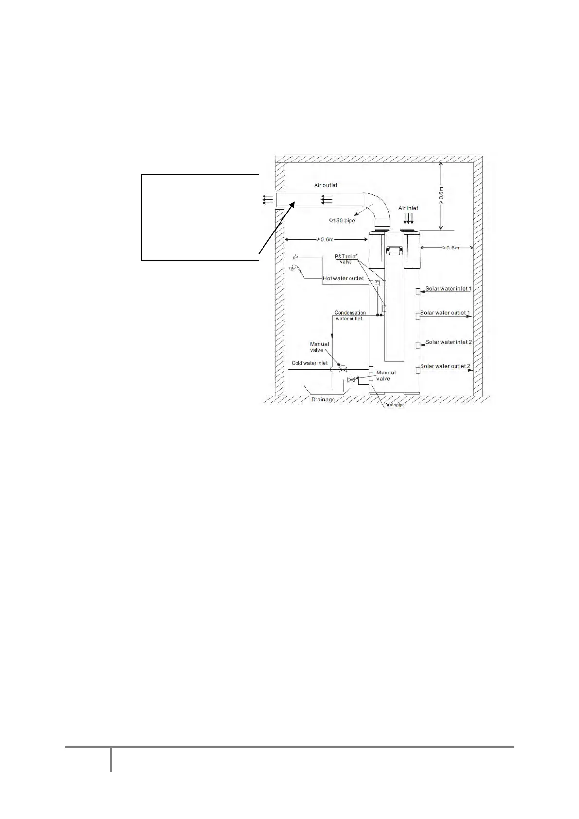
6.1 INSTALLATION DIAGRAM:
Where the unit is installed to draw in air, or dispose of air, from sites more than 8mtrs from the unit a
booster fan must be fitted within the ducting and wired in a manner that the additional fan will run only
when the fan within the unit is running.
6.2 Indirect Thermal Cut-Out (DUAL STAT) and 2-Port Motorised Valve
To comply with Building Regulations and to prevent the unit from overheating a 2-port motorised valve MUST
be fitted to the primary flow to the indirect coil(s). Please note that this diagram may vary from model to model,
but the principle does not.
6.3 Pipe Fittings:
All pipe connections to the unit are 22mm. The fittings are also threaded 3/4” BSP male. Air ducts must be at
least 150mm in internal diameter. It is recommended that you use insulated ducting on both inlet and outlet
ducts.
6.4 Cold Water Supply:
A 22mm cold water supply is recommended, however, if a 15mm (1/2”) supply exists which provides sufficient
flow (see section 2.3) this may be used. More flow noise may be experienced from small bore pipes due to the
increased water velocity through them. The Cold Water Combination Valve supplied with the unit
incorporates a full flow isolating valve which will enable the unit to be isolated from the mains supply for
maintenance or servicing. To close the valve the black handle should be turned so that it lies at 90° to the
direction of flow. To open turn the handle so that it lies parallel to the direction of flow.
An inline filter (open vented) and an effective scale prevention device must be fitted to the cold feed inline
before the feed reaches the unit.
6.5 Cold Water Combination Valve (see Figure 2):
The Cold Water Combination Valve must be sited close enough to the unit to allow the safety discharge pipe
to run in to the tundish, in line with appropriate Regulations. The expansion (safety valve) must not be used
for any other purposes. Under no circumstances is the expansion vessel to be connected to the balanced cold
Unless requested, air
ducting not supplied,
because we don’t
know how much will be
required for your
particular project

Table of Contents

Related product manuals