EasyManua.ls Logo

ETNA EFG507WIT - Page 32

ETNA EFG507WIT
Print Icon
To Next Page IconTo Next Page
To Next Page IconTo Next Page
To Previous Page IconTo Previous Page
To Previous Page IconTo Previous Page
Loading...
32 INSTALLATION
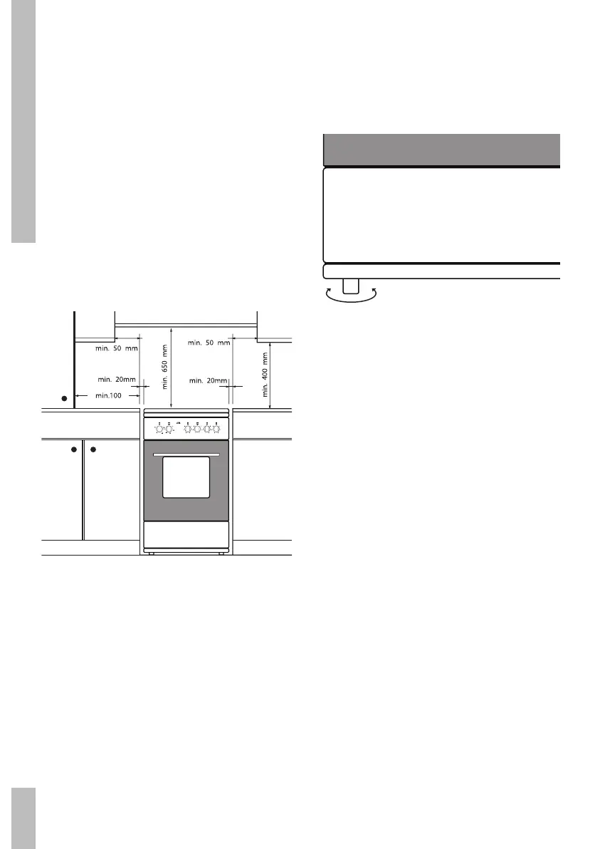
Attention:
When the oven is placed next to a high
cupboard or another wall made of flammable
material the minimum distance between the
cooker and walls should be at least 50 mm.
The minimum distance between the hotplate
and a cooker hood installed above it should be
at least 650 mm.
If the oven is to be installed in a piece of
kitchen furniture, the minimum space
indicated in fig. 10 must be observed.
If the oven is to be installed between kitchen
cupboards, the panelling of the adjacent
kitchen units must be able to withstand
temperatures of at least 90 °C.
Levelling
The height of the oven can be adjusted with
the adjustable feet (see figure 11).
fig. 10
fig. 11
hl_1507H_nl_gb.qxd 12-07-2007 16:06 Pagina 32

Related product manuals