EasyManua.ls Logo

Evco c-pro 3 NODE kilo+ - Example of Electric Connection

Evco c-pro 3 NODE kilo+
55 pages
Print Icon
To Next Page IconTo Next Page
To Next Page IconTo Next Page
To Previous Page IconTo Previous Page
To Previous Page IconTo Previous Page
Loading...
EVCO S.p.A. c-pro 3 NODE kilo+ | Hardware manual ver. 1.0 | Code 114CP3NKPE104
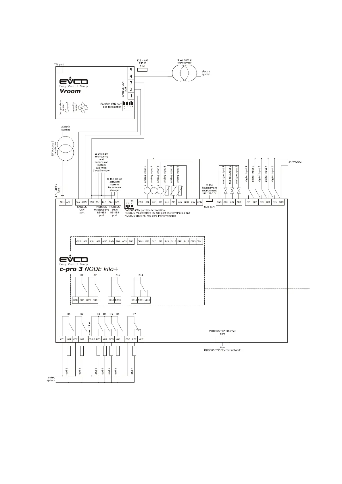
4.8 Example of electric connection
The following drawing shows and example of the electric connection of the devices.
page 22 of 55