EasyManua.ls Logo

Evcon EB20B - EB23 B Wiring Diagram

Default Icon
20 pages
Print Icon
To Next Page IconTo Next Page
To Next Page IconTo Next Page
To Previous Page IconTo Previous Page
To Previous Page IconTo Previous Page
Loading...
035-15266-003Rev.A(0804)
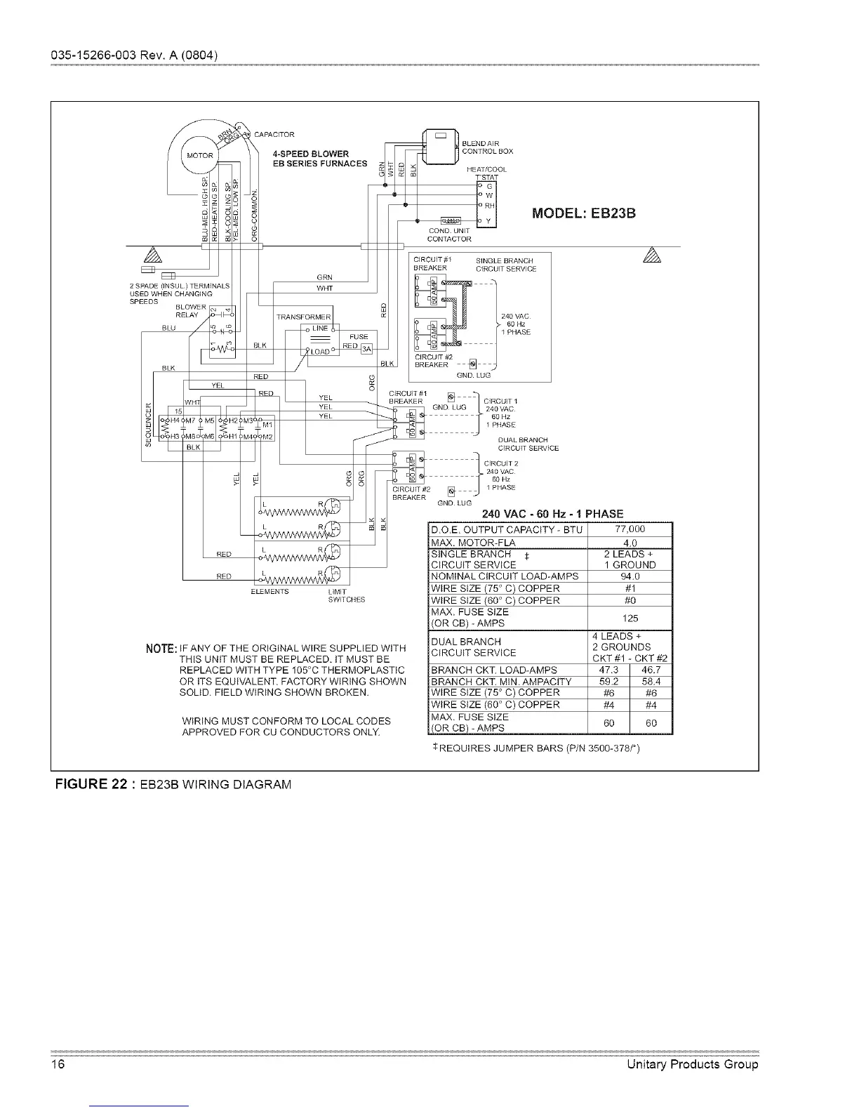
CAPACITOR
4-SPEED BLOWER
EB SERIES FURNACES
BLENDAIR
CONTROL BOX
HEAT/COOL
T'STAT
CONTACTOR
MODEL: EB23B
A
2 SPADE (INSUL) TERMINALS
USED WHEN CHANGING
SPEEDS
RELAY
GRN
CIRCUIT #1 SINGLE BRANCH
CfRCUiT SERVICE
CIRCUIT #2
BREAKER _] j
GND LUG
A
CIRCUIT #1
BREAKER
ELEMENTS L]MIT
SWITCHES
NOTE:IF ANY OF THE ORIGINAL WIRE SUPPLIED WITH
THIS UNIT MUST BE REPLACED. IT MUST BE
REPLACED WITH TYPE 105°C THERMOPLASTIC
OR ITS EQUIVALENT. FACTORY WIRING SHOWN
SOLID. FIELD WIRING SHOWN BROKEN.
WIRING MUST CONFORM TO LOCAL CODES
APPROVED FOR CU CONDUCTORS ONLY.
GND LUG
[_ CIRCUIT 1
Z
240 VAC
60 Hz
I PHASE
DUALBRANCH
CIRCU]T SERVICE
CIRCUIT 2
240 VAC
60 Hz
I PHASE
D.O.E. OUTPUT CAPACITY - BTU
MAX, MOTOR-FLA
SINGLE BRANCH :I:
CIRCUIT SERVICE
NOMINAL CIRCUIT LOAD-AMPS
WIRE SIZE (75 ° C) COPPER
WIRE SIZE (60 I' C) COPPER
MAX, FUSE SIZE
(OR CB) - AMPS
DUAL BRANCH
CIRCUIT SERVICE
BRANCH CKT. LOAD-AMPS
BRANCH CKT. MIN. AMPACITY
WIRE SIZE (75 ° C) COPPER
WIRE SIZE (60 I' C) COPPER
MAX, FUSE SIZE
(OR CB) - AMPS
240 VAC - 60 Hz - 1 PHASE
77,000
4.0
2 LEADS +
1 GROUND
94.0
#1
#0
125
4 LEADS +
2 GROUNDS
CKT #1 - CKT #2
47.3 48.7
59.2 58.4
#6 #6
#4 #4
60 60
:I:REQUIRES JUMPER BARS (P/N 3500-378/*)
FIGURE 22 : EB23BWIRING DIAGRAM
16 Unitary Products Group

Related product manuals