EasyManua.ls Logo

Everglades EVCK9225 - Page 101

Everglades EVCK9225
314 pages
Print Icon
To Next Page IconTo Next Page
To Next Page IconTo Next Page
To Previous Page IconTo Previous Page
To Previous Page IconTo Previous Page
Loading...
97
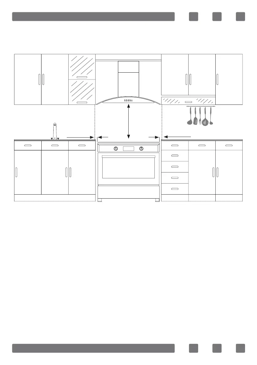
Installation appropriée
Pour l'installation appropriée, conformez-vous aux dimensions four-
nies dans le schéma ci-dessous.
AVERTISSEMENT: Toutes sortes de meubles de
cuisine situés à côté de l’appareil doivent être résis-
tantes à la chaleur. (Au moins 100 °C)
AVERTISSEMENT : N’installez pas l’appareil à
proximité de réfrigérateurs ou de congélateurs. La
chaleur émise par l’appareil augmente la consomma-
tion d'énergie des dispositifs de refroidissement.
650mm min.
6,5 mm min.
6,5 mm min.

Table of Contents