EasyManua.ls Logo

Everglades EVCK9225 - Page 258

Everglades EVCK9225
314 pages
Print Icon
To Next Page IconTo Next Page
To Next Page IconTo Next Page
To Previous Page IconTo Previous Page
To Previous Page IconTo Previous Page
Loading...
246
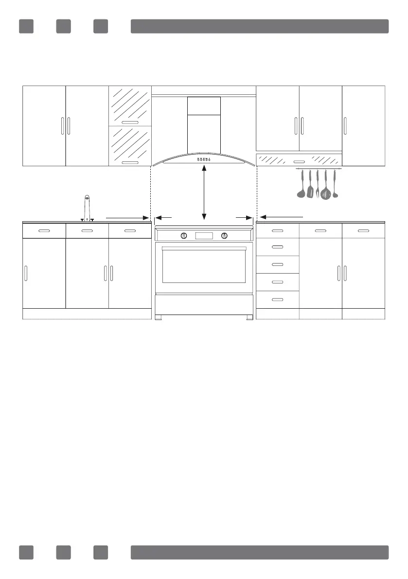
Richtige Installation
Für eine korrekte Installation halten Sie sich bitte an die in der Abbil-
dung unten angegebenen Maße.
WARNUNG: Alle Arten von Küchenmöbeln in der
Nähe des Geräts sollten hitzebeständig sein. (Nicht
weniger als 100 °C)
WARNUNG: Stellen Sie das Gerät nicht neben Kühl-
schränken oder Kühlschränken auf. Die vom Gerät ab-
gestrahlte Wärme erhöht den Energieverbrauch von
Kühlgeräten..
650mm min.
6,5 mm min.
6,5 mm min.

Table of Contents