EasyManua.ls Logo

EVOCA Kalea - Page 102

EVOCA Kalea
108 pages
Print Icon
To Next Page IconTo Next Page
To Next Page IconTo Next Page
To Previous Page IconTo Previous Page
To Previous Page IconTo Previous Page
Loading...
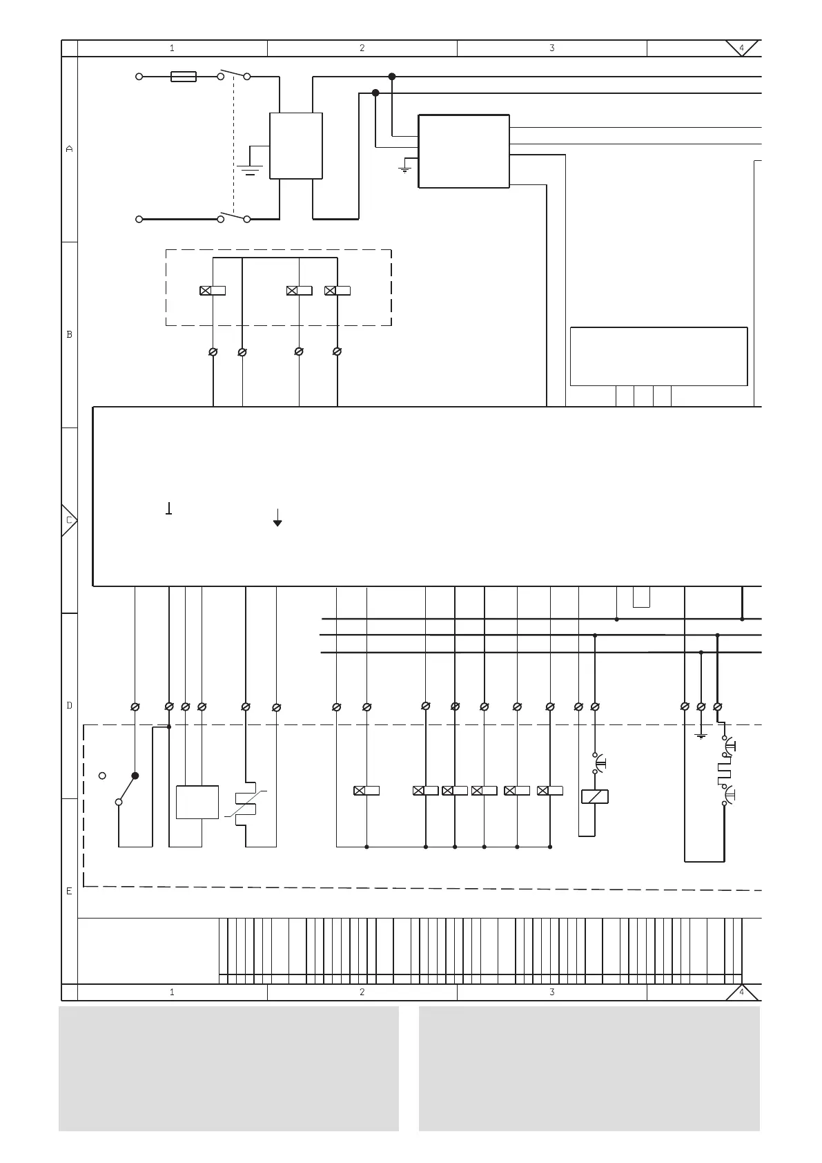
CCG GENERAL COUNTER
CV VOLUMETRIC COUNTER
EEA WATER INLET SOLENOID VALVE
EEAVAP WATER INLET SOLENOID VALVE FOR STEAM
ER COFFEE DISPENSING SOLENOID VALVE
ESP1-. DRAINSOLENOIDVALVE
EV1-.. INSTANTSOLENOIDVALVES
EVAIR AIR SOLENOID VALVE
EVC3B SOLENOID VALVE FOR SECONDARY SOLENOID V
EVH2O WATER SOLENOID VALVE
EVLVAP STEAM NOZZLE SOLENOID VALVE
EVSVAP STEAM BOILER DISCHARGE SOLENOID VALVE
EVVAP STEAM SOLENOID VALVE
EVWMLK CAPPUCCINO DISPENSER WASH SOLENOID VALVE
FA RADIO INTERFERENCE SUPPRESSOR
ICM MOTOR CONTROL SWITCH
IG MAIN SWITCH
IVA EMPTY WATER SWITCH
L2 U1
N4 U3
45
J13.14
J13.16
J12.13
J12.9
J12.12
EV
ESP1
ER
NTC1
GND
OUT
1
3
2
CV
+12V
KS1
PM
1
6
Hydraulic coffee Shelf
+12V
GND
OUTDEV7
OUTDEV3
OUTDEV6
J9.3
OUT 5
J8.1 LINE-A
J13.13 DIG INT IN10
X4.1
X4.3
J11.5 NTC 1
X4.16
X4.12
X4.13
X4.14
X5.8
X5.7
X5.2
X5.3
0 60 92 71 90 70 82
91 1 1
45
J12.11 OUTDEV5
80
X4.11
X4.8
X4.10
J9.1
LINE-A
1
KC1
KC1
RCC
45
EARTH
N
F
X5.6
X5.5
8
9
KC2
RCV
EV
H2O
EV1
20
J12.1
J12.14
2
24VPC
70
OUTDEV8
EEA
IVA
DIG IN14
9
J17.8
EV
H202
MAX
NTC 2
J11.6
NTC2
J11.9
GND
X7.8
X7.4
X7.3
X7.7
X4.2
X4.7
X4.4
J12.6 OUTDFRUL4
J12.10 OUTDEV4
J11.8
GND
X4.15
0
X7.6
24VPCJ12.1
F
N
EARTH
J12.4
OUTDFRUL2
FA
L
N
F
230-240Vac
50HZ
6
7
1
9
CAN_H
CAN_L
GND
951
SM
24Vdc
0Vdc
J1.1
J1.2
J1.3
0
0
N
2
J1-1
J1-2
Salim
J2-7
24Vdc
1
6
J1-3
45
J2-2
J2-1
1
6
J5.1
J5.2
2
J2-6
+
80
70
PM
MLK
J19.6
J19.10
Z4000 MOT P1
Z4000 MOT M1
OUTDFRUL1
J12.3
EV
AIR
Touchscreen 7"
1
CANH
CANL
2
GND
3
4
5
+24Vdc
GND
6
7
8
9
Optional Hydraulic steam Circuit
3
EV
VAP
J12.8 OUTDEV2
X7.5
8
91 0
2 9 97
1
8
1
3
2
J10.5
J10.2
CCG
24Vdc
X5.1
X5.4
J15.1
TR_OUT1
J15.3
TR_OUT2
J15.2
VAC_LINE1
1
J23.1
LEVEL_REF
9
J23.2
LEVEL_IN
J8.2
LINE-B
J9.5
COM7
J9.6
OUT 7
Na
J12.5
96
OUTDFRUL3
X7.2
OUT_PINZATUBO1
EEA
VAP
T15A
IG
IG
KC2
J13.14
J13.16
GND
OUT
1
3
2
ICM
+12V
+12V
GND
J19.7 IN TACHO 1
0
90
92
X8.1
X8.6
X8.5
X8.3
X8.2
X4.2
X4.6
EVLVAP
EVSVAP
X4.5
24VPC
J12.1
J12.4
J21.6
OUTDFRUL2
3
7
2
EVWMLK
X7.1
7
OUTDEV1
J12.7
Not Used, ends on faston
J20.1
J20.2
J20.3
J20.13
BOARD IDENTIFICATION
J20.1, J20.2,J20.3 HHH-> Kalea Standard
J20.1, J20.2,J20.3 HLH-> Plus Coffee
J20.1, J20.2,J20.3 HHL-> Plus Milk
Pull up to 5V, connection closes to GND
MP
21
0
8
J2
0
0
00
X4.9
EV2
IG
A3
T
h
is drawing contains confidential information and is
the property of the
holding company of N&W or one of its
subsidiaries,without whose permission it may not be
copiedor discosed to third parties of otherwise used.
This drawing has to be returned promptly upon request
to N&W.
6
9
8
7
5
4
3
2
1
0
6
9
8
7
5
4
3
2
1
0
6
9
8
7
5
4
3
2
1
0
6
9
8
7
5
4
3
2
1
0
6
9
8
7
5
4
3
2
1
0
LEGENDA
CHECKEDPREPAREDSHEETDATE
DEFINITIONMODEL
BLANCO
GRIS
ROSA
ROSA
AZUL CLARO
OSCURO
VERDE
AMARILLO
NARANJA
ROJO
MARRON
NEGRO
WEISS
GRAU
LILLA
ROSA
HELLBLAU
BLAU
GRUEN
GELB
ORANGE
ROT
BRAUN
SCHWARZ
BLANC
GRIS
ROSE
ROSE
BLEU CIEL
BLEU
VERT
JAUNE
ORANGE
ROUGE
MARRON
NOIR
WHITE
GREY
VIOLET
PINK
LIGHT BLUE
BLUE
GREEN
YELLOW
ORANGE
RED
BROWN
BLACK
BIANCO
GRIGIO
VIOLA
ROSA
AZZURRO
BLU
VERDE
GIALLO
ARANCIO
ROSSO
MARRONE
NERO
1/1
VERSIONPART NUMBER
-
ELECTRICAL DIAGRAM
KALEA PLUS
23/11/2017
608612201
FOSSATI
LIBERALI
-
SX 6086 122 01

Related product manuals