EasyManua.ls Logo

Evolution Aqua nexus 310 - Page 11

Evolution Aqua nexus 310
18 pages
Print Icon
To Next Page IconTo Next Page
To Next Page IconTo Next Page
To Previous Page IconTo Previous Page
To Previous Page IconTo Previous Page
Loading...
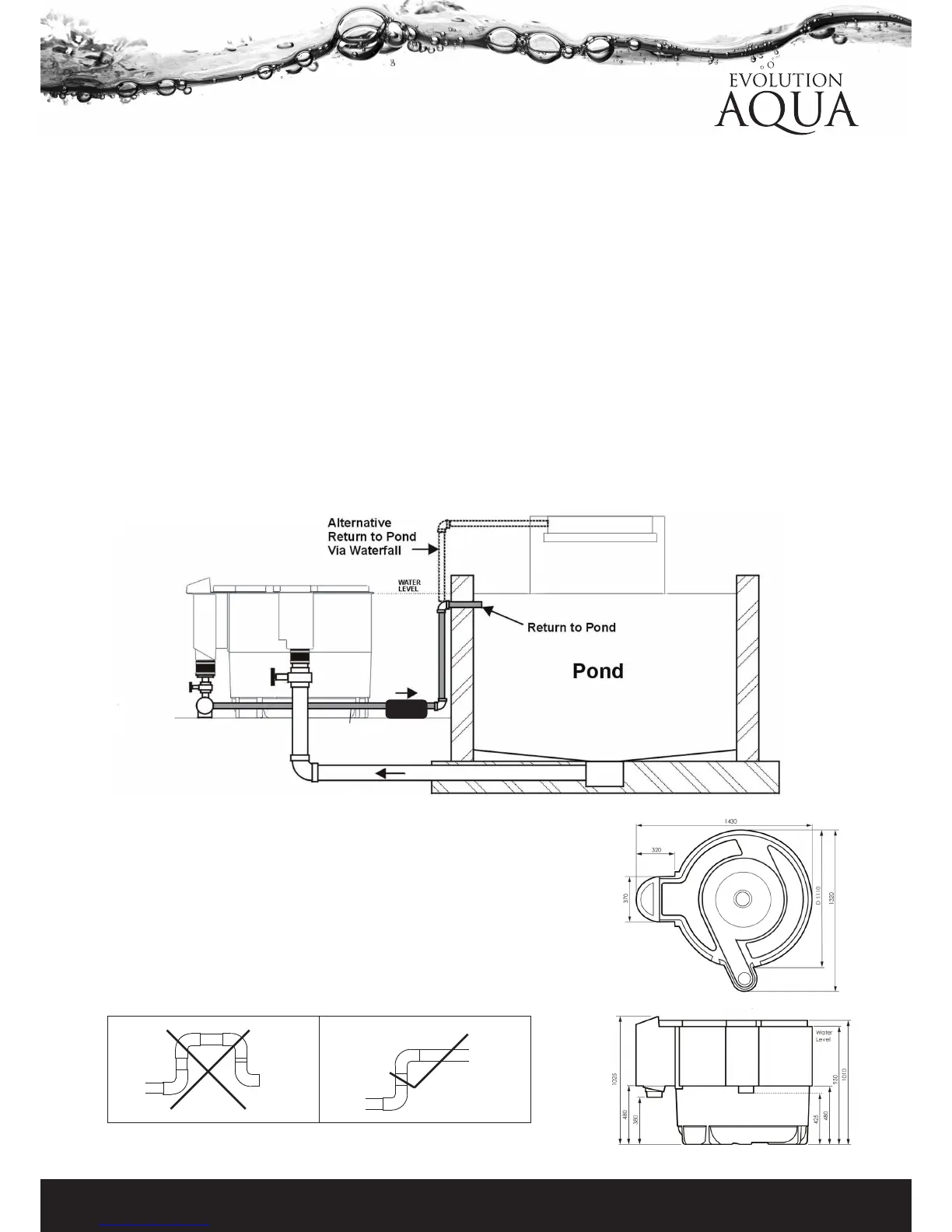
NEXUS 310 GRAVITY FED INSTALLATION
IMPORTANT PREPARATION
A solid and level base is required. It should be a minimum of 1.2m x 1.0m, to allow easy access to valves and for
maintenance purposes. The Nexus lter needs to be well supported, this is to prevent possible distortion when it is full of
water. The best option for this would be a level 100 mm thick concrete plinth, although decking or paving slabs would be
sufcient as long as the Nexus sits level and is not allowed to deect under the weight of the water.
IMPORTANT NOTE: It is not sufcient to support the Nexus using just blocks underneath the feet, as this could lead to dam-
age to the Nexus.
Incorrect installation will render the warranty invalid.
A gravity fed system is where the water level in the Nexus is at the same height as the water level in the pond, therefore it
is critical that the Nexus is installed so that the lip at the top of the Nexus should be level with the proposed nished surface
water level of the pond. The plinth for your Nexus, should be 950mm below where you want the nished pond water
surface to be. Please see diagrams below.
The water on a Gravity fed system should be fed from an appropriately placed bottom drain through at least a 4 inch
(110mm) pipe with as short a length and fewer bends as possible (For optimum ow swept bends should be used). At the
end of the bottom drain line before entering the Nexus, a valve is required so that the line can be shut and the Nexus
isolated.
For long bottom drain pipe runs, it is recommended that a ‘T’ purge valve line
is installed to remove solids that may settle in the bottom drain line. This should
discharge straight to waste (if possible) or into a suitably sized sump.
It is very important that when laying the bottom drain line that there is no section
where the pipework rises then falls as airlocks can form in this area which will block
ow. Figure 1 below describes what should and shouldn’t be done.
Pipework should be level until reaching the lterhouse where it should ideally go
through a swept bend 90 into the Nexus inlet.
Evolution Aqua Ltd
Evolution House Kellet Close Wigan WN5 0LP England +44(0)1942 216554
10
NEXUS310 GRAVITY FED INSTALLATION
From Pond
To Nexus
From Pond
To Nexus
Fig 1
Water
Pump
4” Pipe
1½” or 2” Pipe
UV

Related product manuals