EasyManua.ls Logo

Evopower SF1000 - Wiring Diagrams SF1000 Model

Default Icon
44 pages
Print Icon
To Next Page IconTo Next Page
To Next Page IconTo Next Page
To Previous Page IconTo Previous Page
To Previous Page IconTo Previous Page
Loading...
www.evopower.co.uk
30
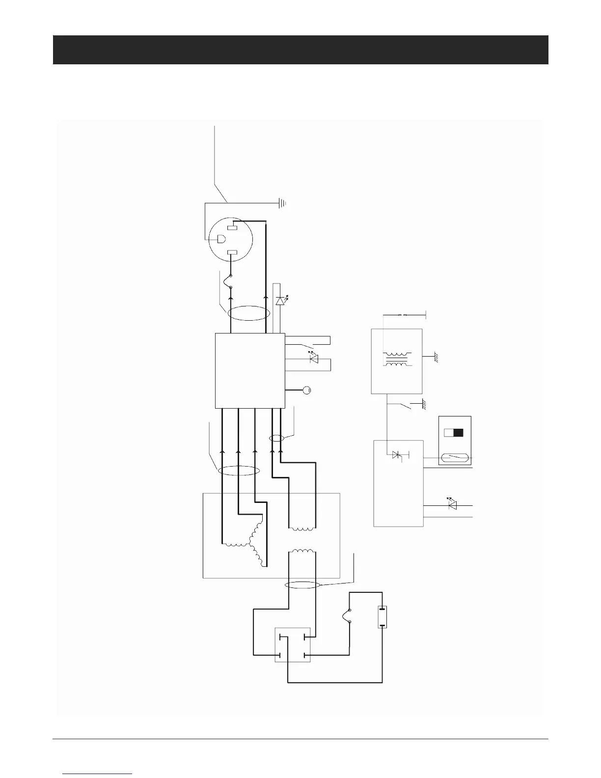
SF1000 / SF2200e Inverter Generator Owner’s Manual
#18 yellow / green
W
~120V
output
indicator
light
ground
terminal
fuel
econom
y
switch
M
step motor/
fuel control
overload
indicator light
front panel
assembly
on / off
switch
S
oil level
N sensor
low oil
indicator light
5-15R
#18 black
#16 black
G
primary
AC breaker
10A
inverter
_
AC
white
+
AC
DC
winding
secondary
#18 blue
DC breaker
5A
DC12V Outlet
5A
WIRING DIAGRAMS
WIRING DIAGRAMS
WIRING DIAGRAMS
SF1000 Model

Related product manuals