EasyManua.ls Logo

Exide powerware plus - Page 36

Exide powerware plus
64 pages
Print Icon
To Next Page IconTo Next Page
To Next Page IconTo Next Page
To Previous Page IconTo Previous Page
To Previous Page IconTo Previous Page
Loading...

Powerware
®
Plus 12 Operator's Manual (164200090 Rev E)  36
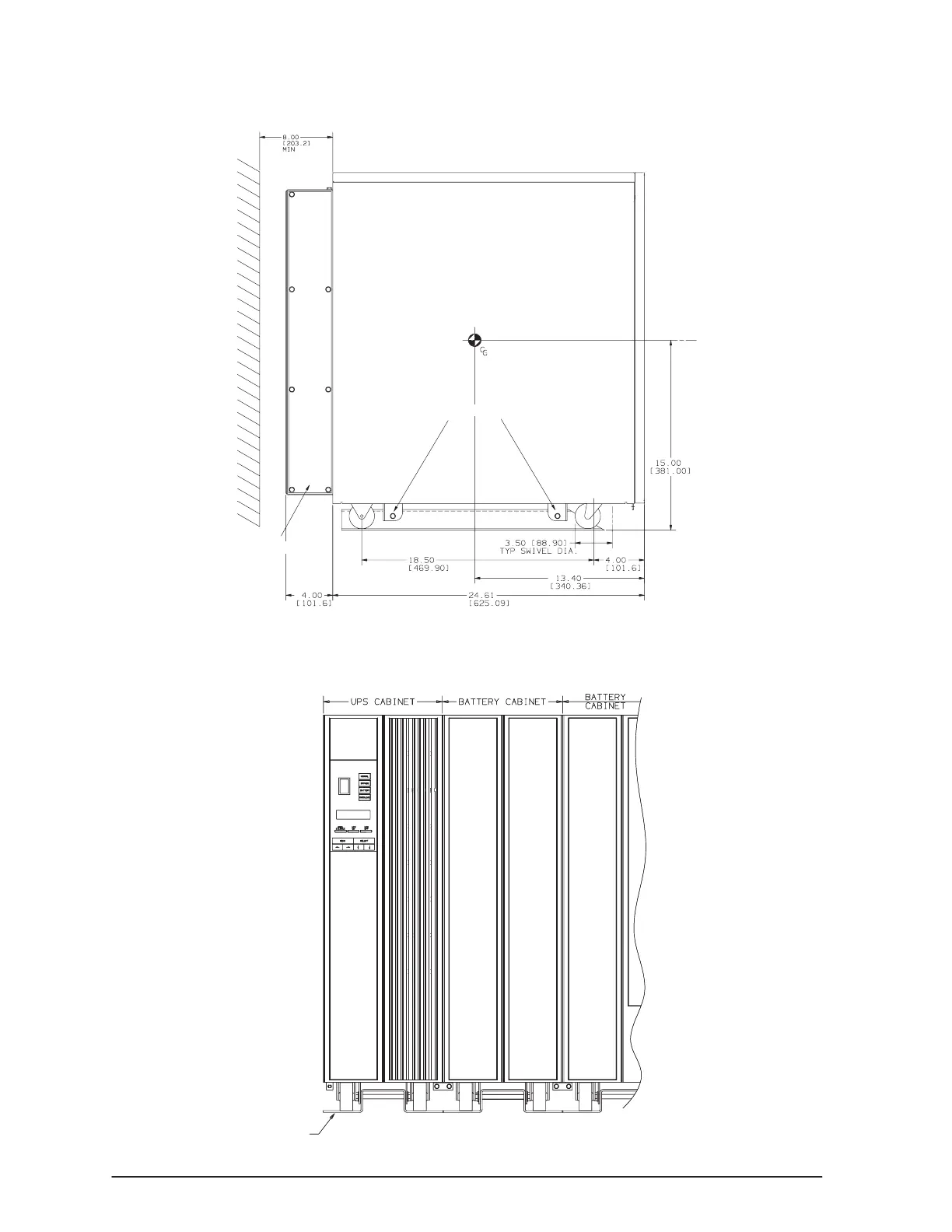
. Using the 5/16I bolts you took out when unloading each cabinet, bolt each
cabinet to the mounting plate as shown in Figure 7.
Service Plate
Mounting Screws
Figure 7. Securing the UPS Cabinet and Mounting Plate
. Position the cabinets into the approximate final operating position with the
battery cabinets to the right of the UPS cabinet as shown in Figure 8.
Cabinet Mounting Plate
Figure 8. Front View of the Plus 12 UPS

Related product manuals