EasyManua.ls Logo

Fassi F 80A.23 - Page 15

Default Icon
94 pages
Print Icon
To Next Page IconTo Next Page
To Next Page IconTo Next Page
To Previous Page IconTo Previous Page
To Previous Page IconTo Previous Page
Loading...
4
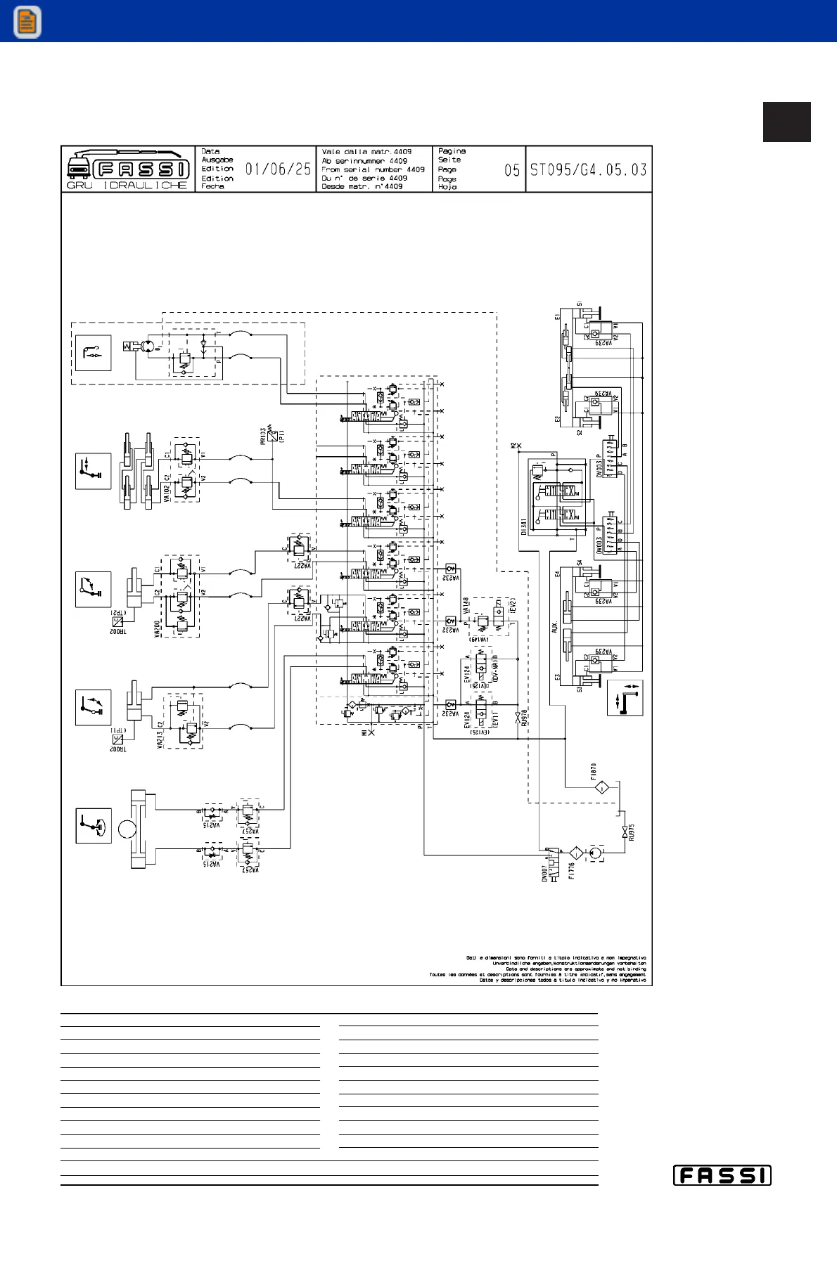
HYDRAULIC
SCHEMATICS
GR3_080»095
Hydraulic schematic for crane - Danfoss distributor - “electronic” lifting moment limiting
(F80A from s.n.
*
4759
*
- F95A from s.n.
*
4409
*
)
CODE DESCRIPTION
DI341 DISTRIBUTOR
DV003
DEVIATOR
DV007
DEVIATOR
EV124
ELECTROVALVE
FI776 FILTER (HIGH PRESSURE)
FI870 FILTER (RETURN)
M1/M2
GAUGE QUICK CONNECTION
PR103
PRESSURE SWITCH
RU975
FAUCET
RU978
FAUCET
TR002
PRESSURE TRANSDUCER
VA102
DOUBLE EFFECT BLOCK VALVE
VA148
ELECTRIC MAIN WITH BY PASS VALVE
VA164
DOUBLE EFFECT BLOCK VALVE
VA185
SELECTOR VALVE
VA200
DOUBLE EFFECT BLOCK VALVE
VA213
SIMPLE EFFECT BLOCK VALVE
VA215
OIL FLOW CHECK VALVE
VA227
SEQUENCE VALVE
VA232
UNIDIRECTIONAL VALVE
VA239
SIMPLE EFFECT BLOCK VALVE
VA257
SEQUENCE VALVE
View thousands of Crane Specifications on FreeCraneSpecs.com
View thousands of Crane Specifications on FreeCraneSpecs.com

Related product manuals