EasyManua.ls Logo

Fassi F 80A.23 - Page 16

Default Icon
94 pages
Print Icon
To Next Page IconTo Next Page
To Next Page IconTo Next Page
To Previous Page IconTo Previous Page
To Previous Page IconTo Previous Page
Loading...
4
HYDRAULIC
SCHEMATICS
GR3_080»095
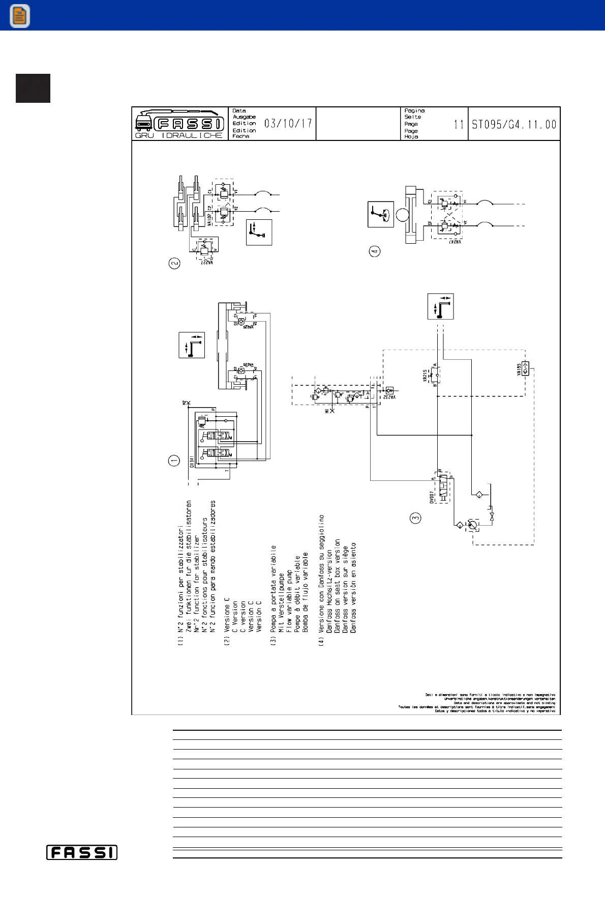
Hydraulic schematic for crane - versions
CODE DESCRIPTION
DI341 DISTRIBUTOR
DV007 ELECTROVALVE
VA102 DOUBLE EFFECT BLOCK VALVE
VA185 SELECTOR VALVE
VA215 OIL FLOW CHECK VALVE
VA227 SEQUENCE VALVE
VA232 UNIDIRECTIONAL VALVE
VA239 SIMPLE EFFECT BLOCK VALVE
VA247 OIL FLOW REGULATOR VALVE FOR ROTATION CYLINDER
View thousands of Crane Specifications on FreeCraneSpecs.com
View thousands of Crane Specifications on FreeCraneSpecs.com

Related product manuals