EasyManua.ls Logo

FATEK FBs-CM55E - Page 297

FATEK FBs-CM55E
348 pages
Print Icon
To Next Page IconTo Next Page
To Next Page IconTo Next Page
To Previous Page IconTo Previous Page
To Previous Page IconTo Previous Page
Loading...
Advanced Function Instruction
7-133
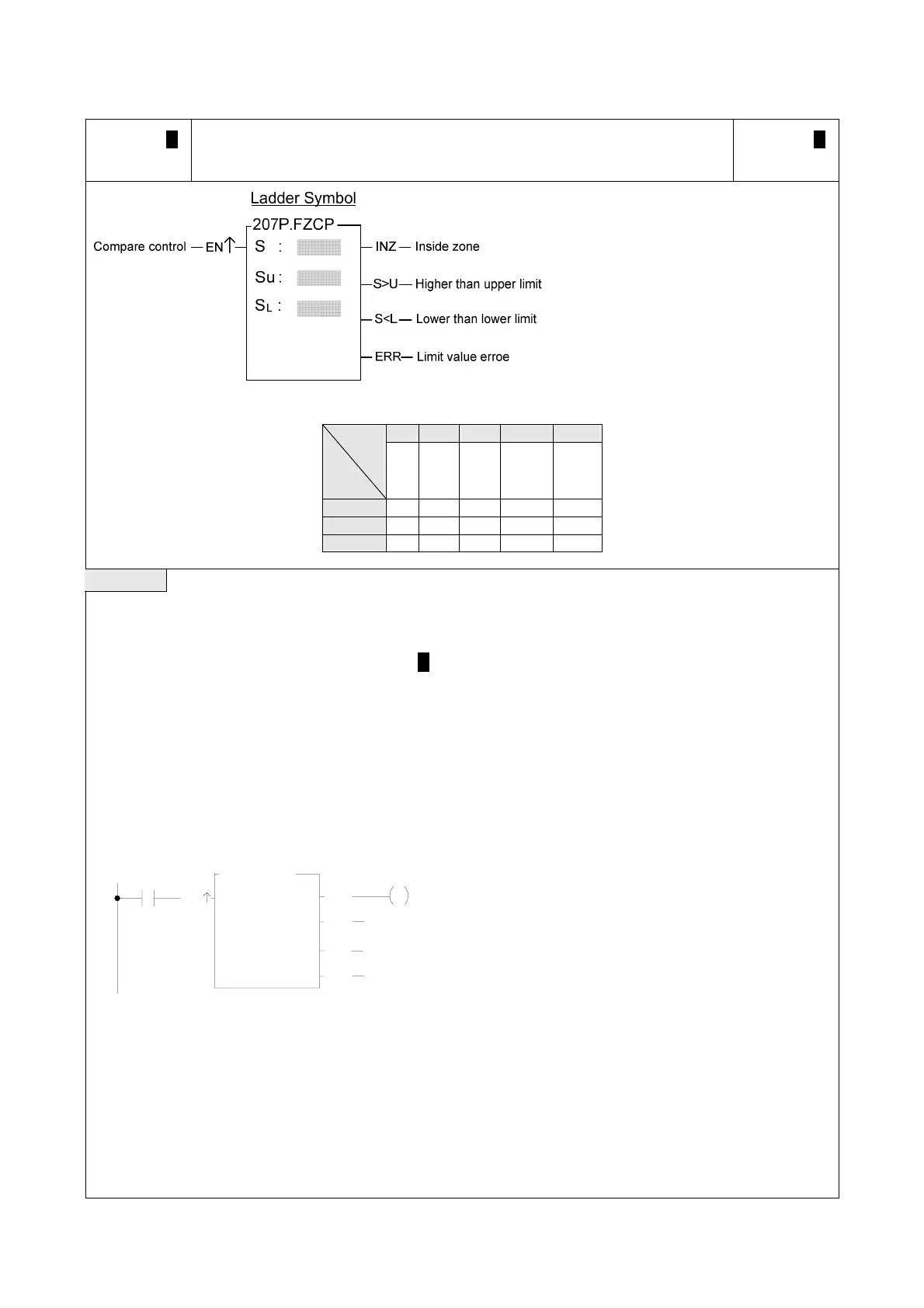
FUN 207 P
FZCP
FLOATING POINT NUMBER ZONE COMPARE
FUN 207 P
FZCP
S : Register for zone comparison
SU: The upper limit value
SL: The lower limit value
S, SU, SL may combine with V, Z, P0~P9 to
serve indirect address application
HR ROR DR K XR
Range
Operand
R0
R383
9
R5000
R8071
D0
D4095
Floating
point
number
VZ
P0P9
S
Su
SL
Description
z The format of floating point number of Fatek-PLC follows the IEEE-754 standard. For detail explanation of
the format please refer to 5.3 (Numbering System) page 5-9.
z When compare control "EN" = 1 or "EN" ( P instruction) changes from 0 to 1, compares S with upper limit
SU and lower limit SL. If S is between the upper limit and the lower limit (S
L
SS
U
), then set the inside
zone flag "INZ" to 1. If the value of S is greater than the upper limit S
U
, then set the higher than upper limit
flag "S>U" to 1. If the value of S is smaller then the lower limit S
L
, then set the lower than lower limit flag
"S<L" as 1.
z The upper limit S
U
should be greater than the lower limit S
L
. If S
U
<S
L
, then the limit value error flag "ERR"
will set to 1, and this instruction will not carry out.
X0
EN
S :
Su :
R10
R12
207P.FZCP
INZ
S>U
S<L
Y0
S
L :
R14
ERR
z The instruction at left compares the value of
DR10 with the upper and lower limit zones
formed by DR12 and DR14. If the values of
DR10~DR14 are as shown in the diagram at
bottom left, then the result can then be
obtained as at the right of this diagram.
z If want to get the status of out side the zone,
then OUT NOT Y0 may be used, or an OR
operation between the two outputs S>U and
S<L may be carried out, and move the result
to Y0.

Other manuals for FATEK FBs-CM55E

Related product manuals