EasyManua.ls Logo

Felder BF 6-41 - Main Dimensions BF 6-31

Felder BF 6-41
214 pages
Print Icon
To Next Page IconTo Next Page
To Next Page IconTo Next Page
To Previous Page IconTo Previous Page
To Previous Page IconTo Previous Page
Loading...
- 115 -
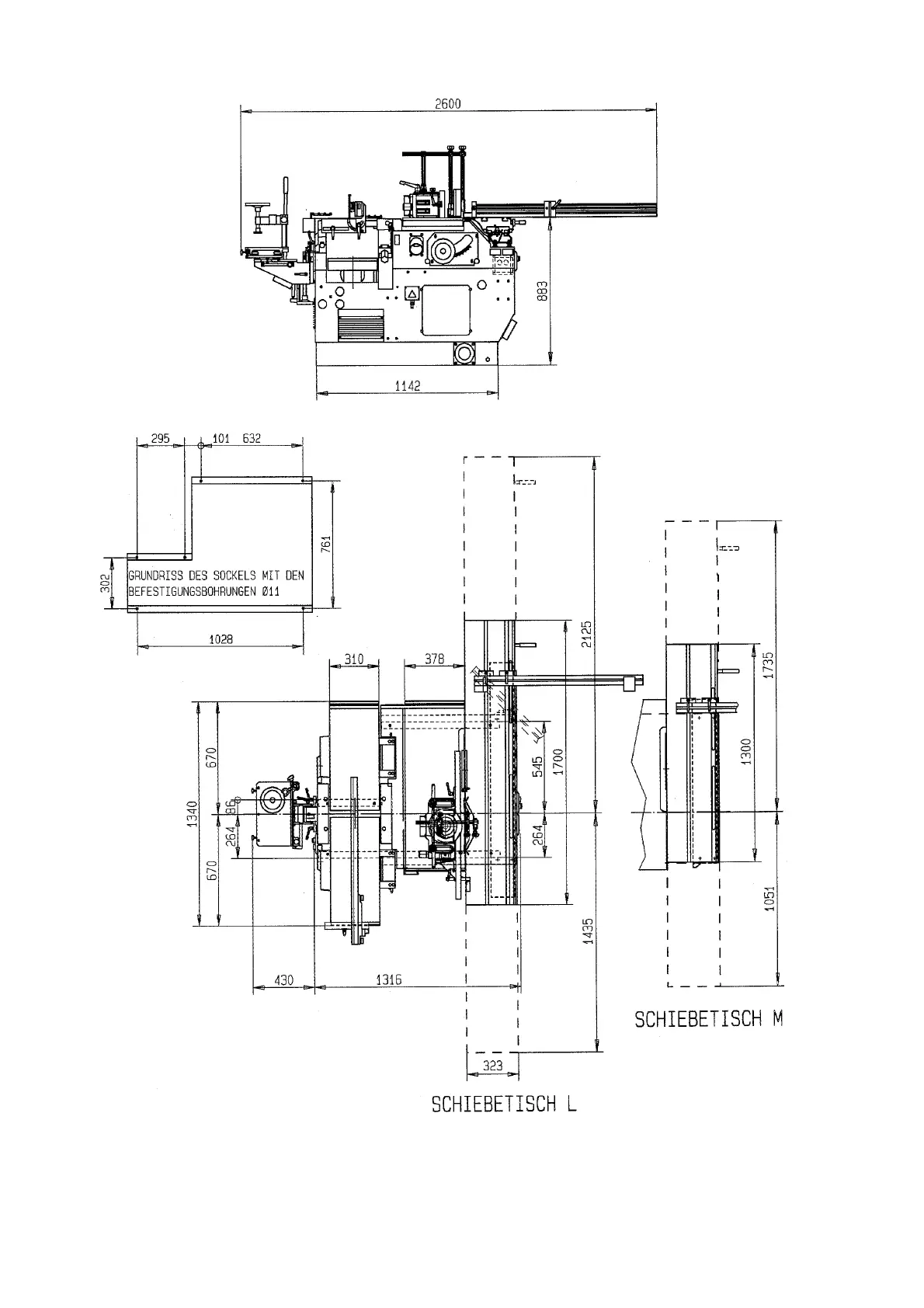
Hauptabmessungen BF 6-31
Maschine mit Schiebetisch M und L
Abbildung mit Option Bohreinrich-
tung
Durchmesser der Befestigungsboh-
rungen in den Bodenschienen der
Maschine = 11 mm
Dimensions principales BF 6-31
Machine avec chariot coulissant M
Représentation avec l´option mortai-
seuse
Diamètre des percements de scelle-
ment dans le socle machine: 11 mm
Main dimensions BF 6-31
Machine with sliding table M and L
Illustration with optional drilling
assembly
Diameter of the mounting holes in the
base rails of the machine = 11 mm

Table of Contents

Related product manuals