EasyManua.ls Logo

Felder BF 6-41 - Main Dimensions K-37

Felder BF 6-41
214 pages
Print Icon
To Next Page IconTo Next Page
To Next Page IconTo Next Page
To Previous Page IconTo Previous Page
To Previous Page IconTo Previous Page
Loading...
- 135 -
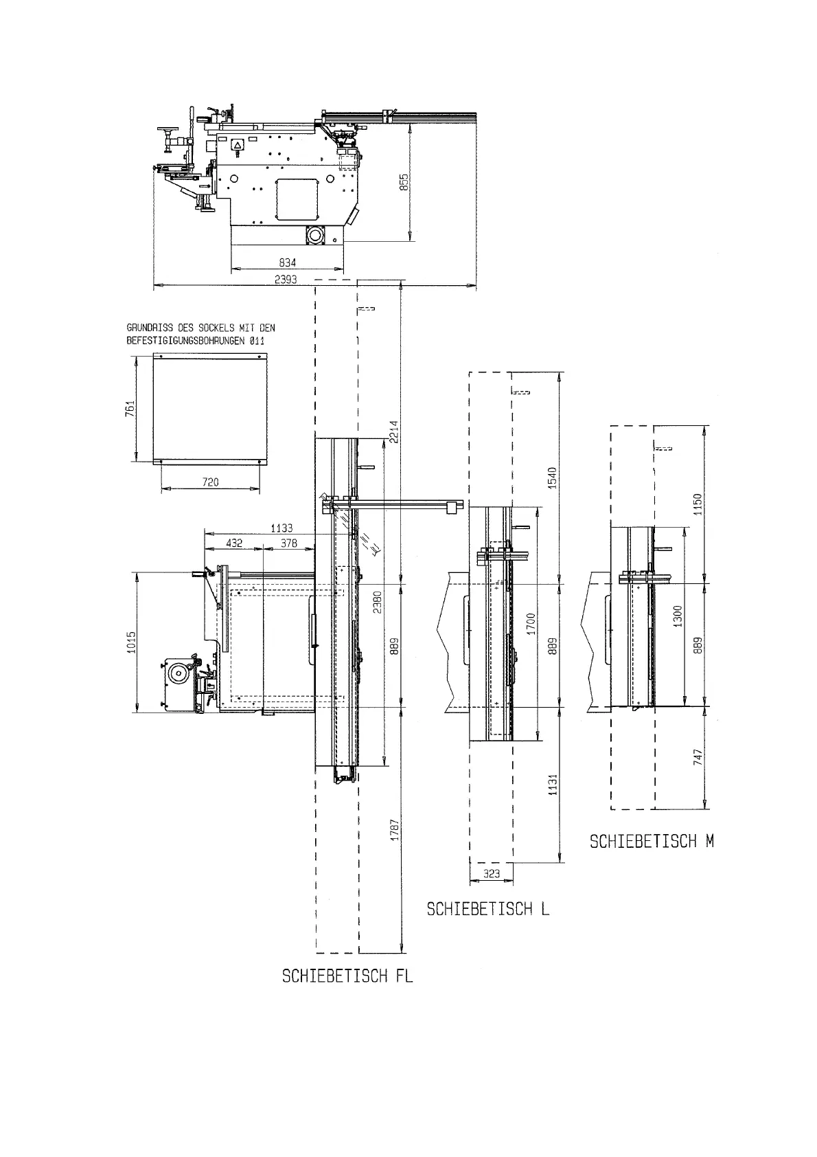
Hauptabmessungen K-37
Maschine mit Schiebetisch M,L,FL
Abbildung mit Option Bohreinrich-
tung
Durchmesser der Befestigungsboh-
rungen in den Bodenschienen der
Maschine = 11 mm
Dimensions principales K-37
Machine avec chariot coulissant M,
L et FL. Représentation avec option
mortaiseuse.
Diamètre des percements de scelle-
ment dans le socle machine: 11 mm
Main dimensions K-37
Machine with sliding table M, L&FL
Illustration with optional drilling
assembly
Diameter of the mounting holes in the
base rails of the machine= 11 mm

Table of Contents

Related product manuals