EasyManua.ls Logo

Felder BF 6-41 - Page 84

Felder BF 6-41
214 pages
Print Icon
To Next Page IconTo Next Page
To Next Page IconTo Next Page
To Previous Page IconTo Previous Page
To Previous Page IconTo Previous Page
Loading...
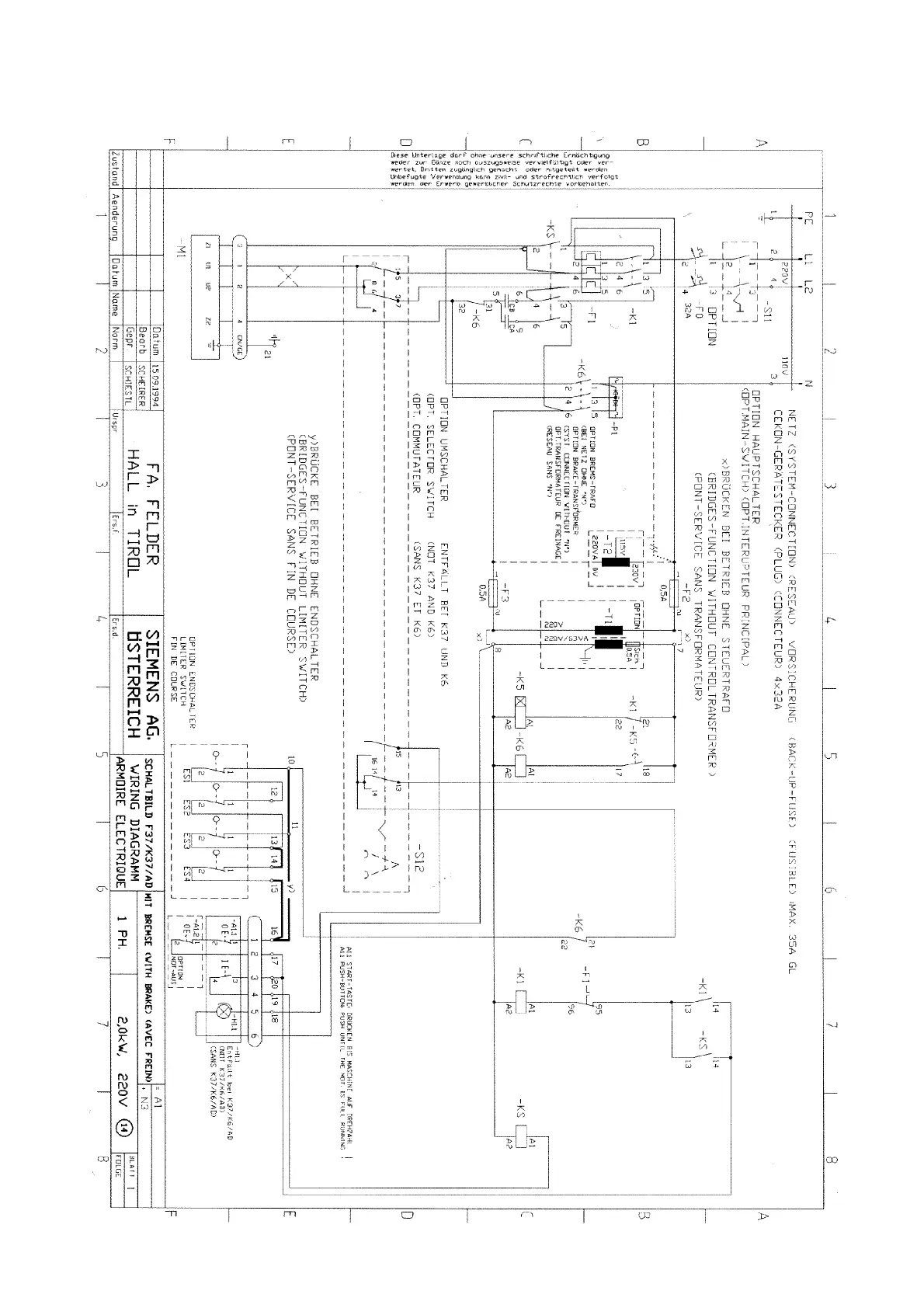
- 230 -
1x220V, 1 Motor
mit Bremse
1x220V, 1 motor
with brake
1x220V, 1 Moteur
avec frein

Table of Contents

Related product manuals