EasyManua.ls Logo

Fermax 8044 - Page 31

Fermax 8044
64 pages
Print Icon
To Next Page IconTo Next Page
To Next Page IconTo Next Page
To Previous Page IconTo Previous Page
To Previous Page IconTo Previous Page
Loading...
Pag. 31
Technical
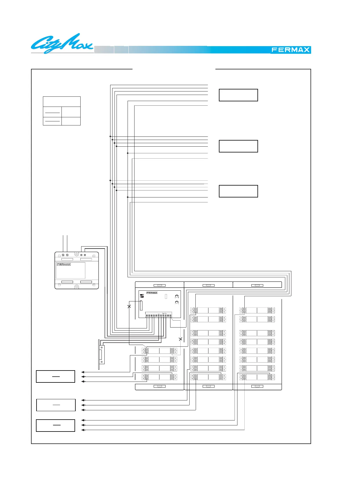
WIRING DIAGRAM
GENERAL ENTRANCE
E 1.6 DOOR PHONE SYSTEM
CODOMINIUM WITH SEVERAL BLOCKS
F
1
1
A
1
PG PG
2
PG
3
H
1
H
2
3
H
J
2
J
3
1
J
21
n-1n
21
n-1n
21
n-1n
6
3
2
1
3
2
1
6
3
1
2
6
Vac
SEC. 12VacPRIM
CN1
1
2
3
UF
6
1
2
3
PT2
PT1
Ab
Cp2
Ab
Tc
Cp1
INT.
EXT.
TO THE MIDDLE
BLOCK DIAGRAM
TO THE LAST BLOCK
DIAGRAM
TO THE FIRST BLOCK
DIAGRAM
Calls
block 2
Calls
block 1
Calls
block 3
SECTION TABLE
Distances
up to 300 meters
0.5 mm
1 mm
2
2
UNIVERSAL
AMPLIFIER
CUT
(*)
CUT
(*)
(*) Cut the common pushbutton wire (according to the panel model).

Related product manuals