EasyManua.ls Logo

Fermax 8044 - Video Phone Systems (E 2.x); Basic Video Installation (E 2.1)

Fermax 8044
64 pages
Print Icon
To Next Page IconTo Next Page
To Next Page IconTo Next Page
To Previous Page IconTo Previous Page
To Previous Page IconTo Previous Page
Loading...
Pag. 41
Technical
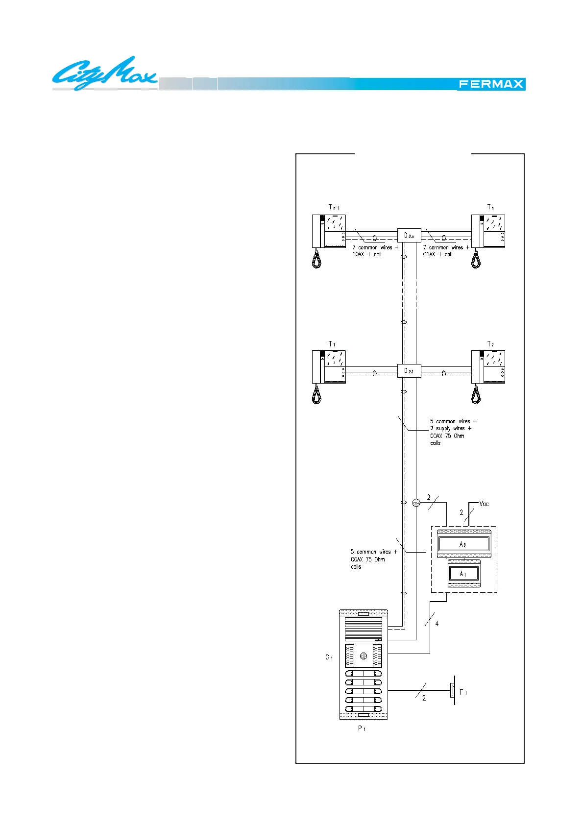
General diagram for a basic video door phone installations in a building with one entrance.
MATERIAL NEEDED
In the dwellings and on the floors
M1, M2,...Mn Citymax Export Monitor Ref.: 8023
D2.1,... D2.n Video Distributor Ref.: 2448
A distribution of two monitors per floor is assumed
In the communal interior area
A1 Audio Power Supply Ref.: 8787
A3 Video Power Supply Ref.: 88302
One Video Power Supply for each 60 monitors.
In the street
P1 Outdoor Panels
Neccesary combiantion.
Do not forget the telecamera Ref. 8028.
F1 Electric lock Ref.: 2911
For other types consult catalogue.
BASIC FUNCTION
Pushing a determined button on the outdoor panel causes
the call signal Cp1, generated in the amplifier, to be sent
along the call line to the corresponding monitor, which pro-
duces the typical tremolo call tone. At the same time the
screen will switch itself on, showing the image captured by
the telecamera.
Upon picking up the handset, a switch connects the
telephone to the common audio cables (2 & 6), thus
establishing communication with the outdoor panel.
When the door release button on the monitor is pressed
this joins wires 1 and 3 of the installation, which makes the
amplifier activate the door release.
REMEMBER THAT
The connectors Ref. 8033 are supplied seperately from
the monitor.
A telecamera Ref. 8028 has to be installed, therefore a
panel with window must be chosen.
It is neccessary to cut out all the 75 ohm resistors in the
video distributors except the last one. See wiring diagram.
SCHEMATIC DIAGRAM
E 2.1 VIDEO PHONE SYSTEM
BASIC INSTALLATION

Related product manuals