EasyManua.ls Logo

Fermax 8044 - Page 55

Fermax 8044
64 pages
Print Icon
To Next Page IconTo Next Page
To Next Page IconTo Next Page
To Previous Page IconTo Previous Page
To Previous Page IconTo Previous Page
Loading...
Pag. 55
Technical
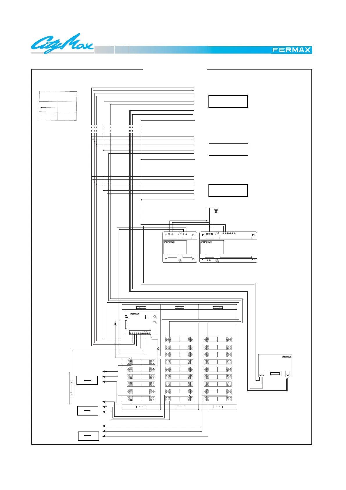
WIRING DIAGRAM
GENERAL ENTRANCE
E 2.5 VIDEO PHONE SYSTEM
CONDOMINIUM WITH SEVERAL BLOCKS
F
1
1
A
1
PG
2
PG
3
PG
3
A
CG
6
3
2
1
J
H
H
CT
-
COAX
H
J
1
6
3
2
1
1
2
2
-
1
3
J
2
3
6
-
3
SEC. 12VacPRIM PRIM SEC. 18Vdc220V
Vac
FE
-+-+-+
21
n-1n
21
n-1n
21
n-1n
CONECTOR TEST
DE PRUEBA
-+CT VM
CN1
EXT.
INT.
3
PT1
PT2
1
2
FU
1
3
2
6
Ab
Cp2
Ab
Cp1
Tc
TO THE MIDDLE
BLOCK DIAGRAM
TO THE LAST BLOCK
DIAGRAM
TO THE FIRST BLOCK
DIAGRAM
CALLS
block 2
CALLS
block 3
(*) Cut the common pushbutton wire (according to the panel model).
SECTION TABLE
Distances
up to 300 meters
0.5 mm
1 mm
2
2
CUT
(*)
CUT
(*)
CALLS
block 1

Related product manuals