EasyManua.ls Logo

Fermax DUOX Video Direct Outdoor Panel

Fermax DUOX Video Direct Outdoor Panel
88 pages
Go to English
To Next Page IconTo Next Page
To Next Page IconTo Next Page
To Previous Page IconTo Previous Page
To Previous Page IconTo Previous Page
Loading...
Pag 84
ON
B
D
A
C
E
F
DL1
CN9 TAMPER
CN1
PACK
EXTENSION
ALIMENTACION
POWER SUPPLY
18 Vdc
-+
JP1
JP2
-
BS
S
C
NCNO
B
B
+
GND
CT
CN2
ADAPTOR
LINE
LEDS
JP2
JP1
C
OFF
OFF
ON
PL
SB
BK
EG
TYPE
BK
VIDEO
DUOX
AMPLIFIER
AMPLIFICADOR
+
2
1
C
NC
NO
EXIT
MIC
AUDIO
LANGUAGE
IDIOMA
ONE
BUS
CN3
TO
ONE
VERSION
:
18Vdc
SW1
CN9
CN1
SW1 PROG
ENTRADA/INPUT
ARRIVÉE/EINTRITT
CN1
UP
SALIDA/OUTPUT
SORTIE/AUSGANG
CN2
MÓDULO TECLADO
KEYPAD MODULE
MODULE CLAVIER
TASTATURMODUL
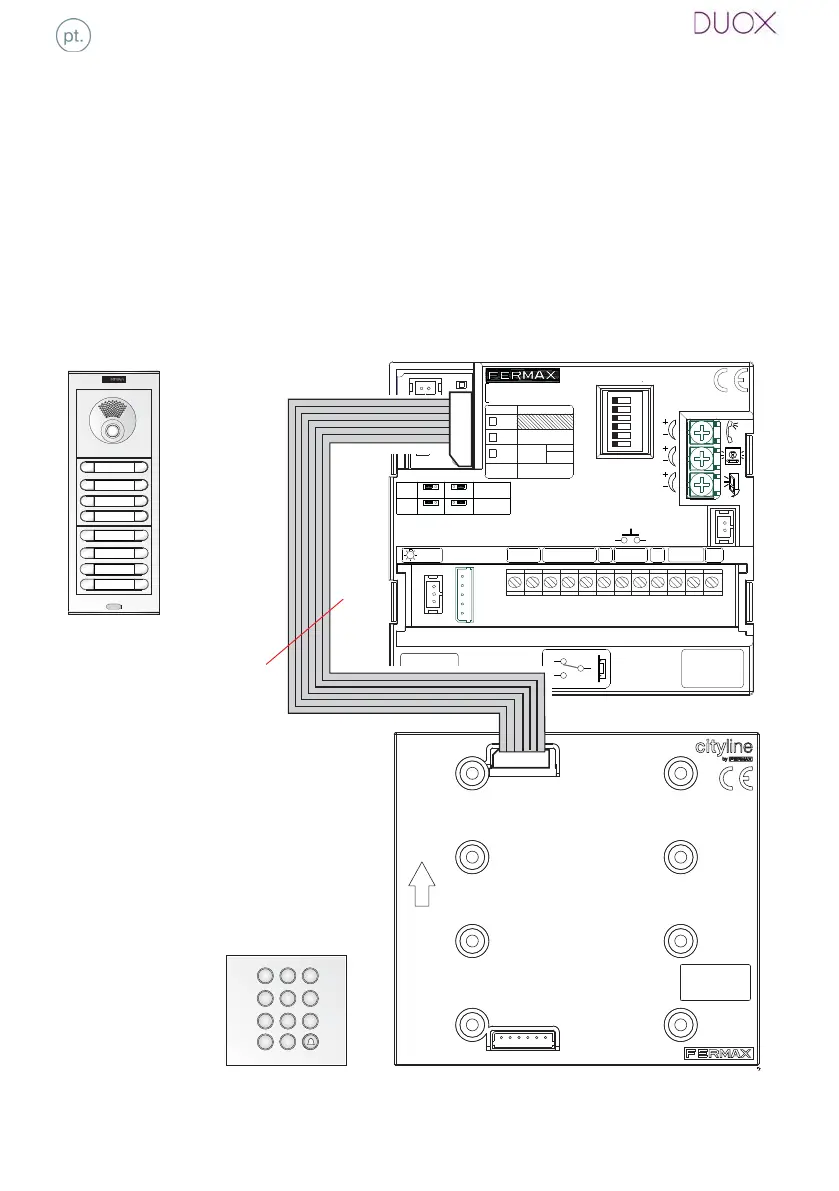
Amplificador Skyline
Realizar os passos seguintes:
1.º Com a alimentação desligada, separar o módulo de botões Skyline que está ligado a
CN1 no amplificador.
2.º Utilizar o cabo de 6 vias dessa ligação para ligar o teclado conforme indicado no
esquema.
3.º Ligar novamente a alimentação. Já se podem programar os parâmetros necessários
mediante o teclado.
4.º Antes de proceder às operações de desligar o teclado e ligar novamente o módulo de
botões Skyline, cortar a alimentação.
987
654
321
A
B
0
Cabo de 6 vías

Table of Contents

Related product manuals