EasyManua.ls Logo

Ferroli DIVA C32 - Page 46

Ferroli DIVA C32
68 pages
Print Icon
To Next Page IconTo Next Page
To Next Page IconTo Next Page
To Previous Page IconTo Previous Page
To Previous Page IconTo Previous Page
Loading...
DIVA C24 / C28 / C32
46
RO
cod. 3541E032 - Rev. 00 - 02/2014
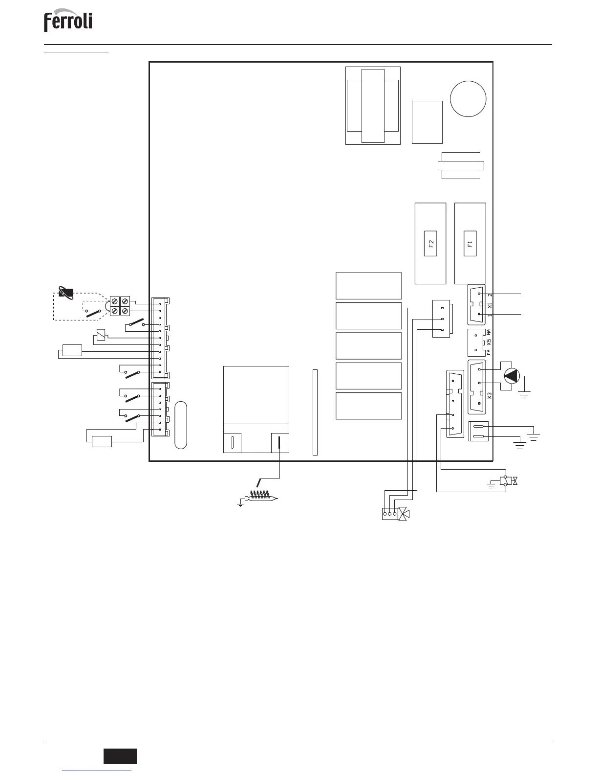
5.6 Schemă electrică
fig. 21 - Schemă electrică
A
AtenĠie: Înainte de a racorda termostatul de cameră sau cronocomanda la
distanĠă, scoateĠi puntea de pe panoul de borne.
32 Pompă de circulaĠie încălzire
34 Senzor temperatură încălzire
38 Fluxostat
42 Senzor temperatură apă menajeră
44 Valvă de gaz
47 Cablu “modureg”
49 Termostat de siguranĠă
72 Termostat de cameră (opĠional)
81 Electrod de aprindere úi detectare
95 Valvă deviatoare
114 Presostat apă
126 Termostat gaze arse
139 Cronocomandă la distanĠă (opĠional)
X4
1
2
3
4
5
6
7
114
42
47
38
72
T.
L
N
230V
50 Hz
1
3
2
32
X7
1
44
81
1
2
3
4
5
6
7
8
9
10
11
X2
DBM32
PT1
PT2
49
126
34
T.
PR08205
3.15A 250Vac
2
3
4
139
1 2 3
95

Related product manuals