EasyManua.ls Logo

Ferroli divaproject C24 - Page 42

Ferroli divaproject C24
Print Icon
To Next Page IconTo Next Page
To Next Page IconTo Next Page
To Previous Page IconTo Previous Page
To Previous Page IconTo Previous Page
Loading...
DIVAPROJECT C24
42
EN
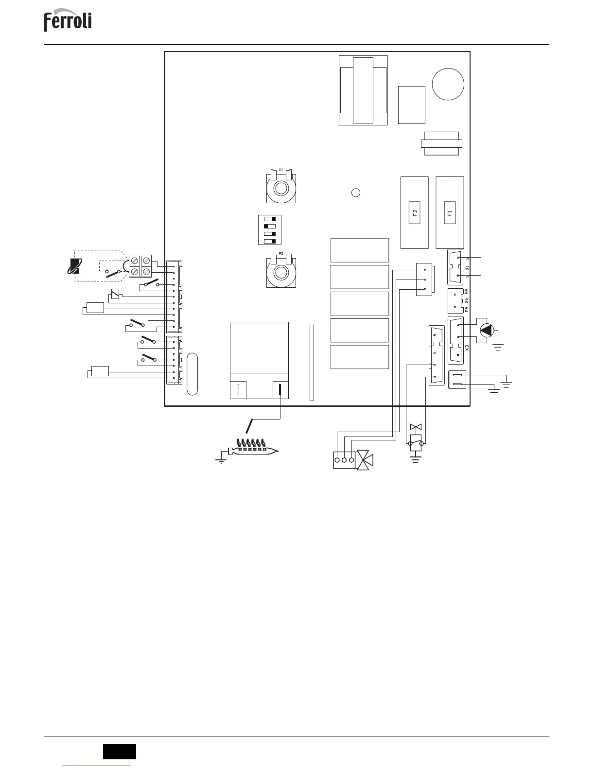
fig. 15 - Wiring diagram
A
Attention: Remove the jumper on the terminal block before connecting the room thermostat or remote timer control.
32 Heating circulating pump
34 Heating sensor
38 Flow switch
42 DHW temperature sensor
44 Gas valve
47 Modureg
49 Safety thermostat
72 Room thermostat (optional)
81 Ignition/detection electrode
95 Diverter valve
114 Water pressure switch
126 Fume thermostat
139 Remote timer control (optional)
X4
1
2
3
4
5
6
7
114
42
47
38
72
T.
L
N
230V
50 Hz
1
3
2
32
X7
1
44
81
1
2
3
4
5
6
7
8
9
10
11
X2
DBM33B
PT1
PT2
49
126
34
T.
1234
ON DIP
3.15A 250Vac
2
3
4
95
1 2 3
139
FRG*5HY

Related product manuals