EasyManua.ls Logo

Ferroli divaproject C24 - Page 48

Ferroli divaproject C24
Print Icon
To Next Page IconTo Next Page
To Next Page IconTo Next Page
To Previous Page IconTo Previous Page
To Previous Page IconTo Previous Page
Loading...
DIVAPROJECT C24
48
FR
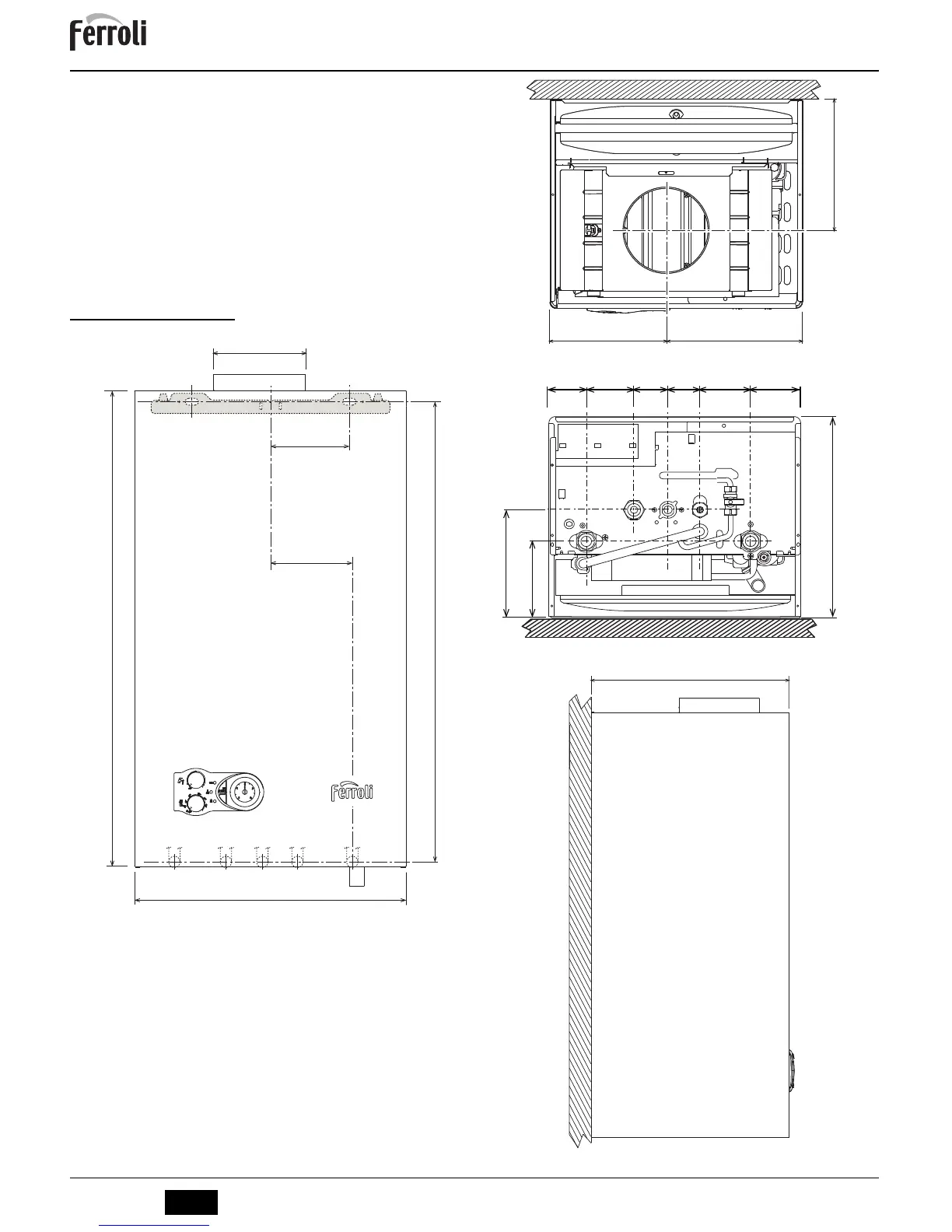
5. CARACTÉRISTIQUES ET DONNÉES TECHNIQUES
Tableau 4 - Légende des figures du cap. 5
5.1 Dimensions et raccordements
fig. 8 - Vue de face
fig. 9 - Vue du haut
fig. 10 - Vue du bas
fig. 11 - Vue latérale
7
Arrivée gaz
39
Limiteur de débit d'eau
8
Sortie eau chaude sanitaire
42
Capteur de température eau chaude sanitaire
9
Entrée eau chaude sanitaire
44
Vanne à gaz
10
Départ installation
49
Thermostat de sécurité
11
Retour installation
56
Vase d'expansion
14
Soupape de sécurité
74
Robinet de remplissage installation
19
Chambre de combustion
78
Antirefouleur
22
Brûleur
81
Électrode d'allumage et de détection
27
Échangeur en cuivre pour chauffage et eau chaude sanitaire
95
By-pass
32
Circulateur circuit chauffage
114
Pressostat eau
34
Capteur de température chauffage
126
Thermostat fumées
36
Purgeur automatique
194
Échangeur eau chaude sanitaire
37
Filtre entrée eau froide
241
By-pass automatique
38
Débitmètre
700
680
400
117
120
Ø
131
184
216
208
330
178
126
60 76 54 50 80 80
10
897
11
330
FRG*5HY

Related product manuals