EasyManua.ls Logo

Ferroli TEMPRA 12 - Overall View and Main Components

Ferroli TEMPRA 12
44 pages
Print Icon
To Next Page IconTo Next Page
To Next Page IconTo Next Page
To Previous Page IconTo Previous Page
To Previous Page IconTo Previous Page
Loading...
35
Tempra 12 - 18
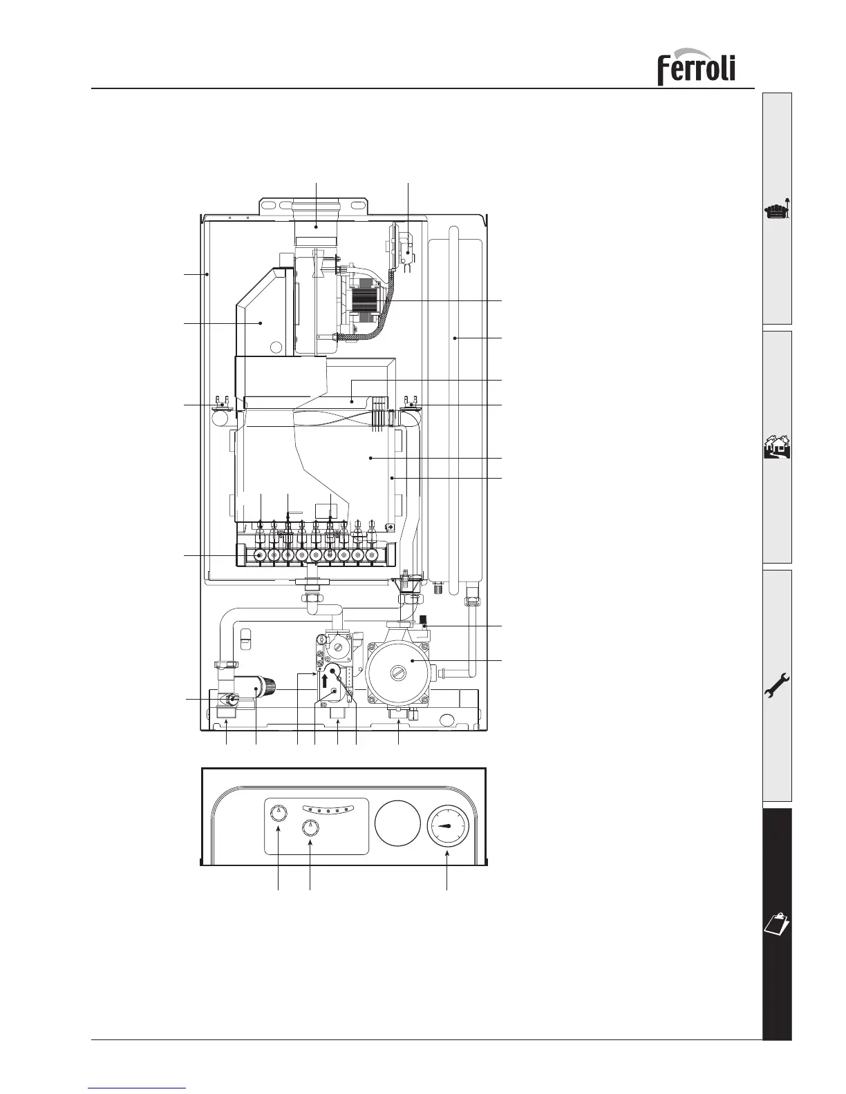
4.2 Overall view and main components
Key
5 Sealed compartment
7 Gas inlet
10 Central heating outlet
11 Central heating inlet
14 Safety valve
16 Fan
19 Combustion chamber
20 Burner assembly
21 Main nozzle
22 Burner
26 Combustion chamber
insulation
27 Copper heat exchanger
29 Flue gas outlet manifold
32 Central heating pump
34 Central heating
temperature sensor
36 Automatic air vent
43 Air pressure switch
44 Gas valve
49 Safety thermostat
50 Central heating limit
thermostat
56 Expansion vessel
63 Central heating
temperature adjustment
74 Filling cock
81 Ignition electrode
82 Detection electrode
84 1
st
gas valve operator
85 2
nd
gas valve operator
98 Off –On - Reset switch
145 Water pressure gauge
0
5
1
2
3
4
6
98 63 145
1177 14 84 8544
32
36
26
19
50
27
16
56
4329
49
28
5
82
8122
20
21
34
fig. 31