EasyManua.ls Logo

Fike FCP-300ECS - 1: Wire Sizing for FIK-6815; 2: Wiring Requirements for Fike Modules

Fike FCP-300ECS
175 pages
Print Icon
To Next Page IconTo Next Page
To Next Page IconTo Next Page
To Previous Page IconTo Previous Page
To Previous Page IconTo Previous Page
Loading...
70 FCP-300/FCP-300ECS Manual — P/N LS10145-002FK-E:A 3/12/2021
Fike and SWIFT SLC Device Installation Wiring Requirements for SLC Devices
7.4.1 Wire Sizing for FIK-6815
The SLC requires the use of a specific wire type, depending on the mode of operation, to ensure proper circuit functioning. The
wire size should be no smaller than 18 AWG (.075 mm) and no longer that 12 AWG (3.25 mm) wire. The wire size depends on
the length of the SLC circuit. It is recommended that all wiring be twisted-pair to minimize the effects of the electrical interfer-
ence shield termination.
7.4.2 Wiring Requirements for Fike Modules
It is recommended that all SLC wiring be twisted-pair to minimize the effects of the electrical interference. Shielded wire is
not recommended for use. Use Table 7.2 to determine the specific wiring requirements for the SLC.
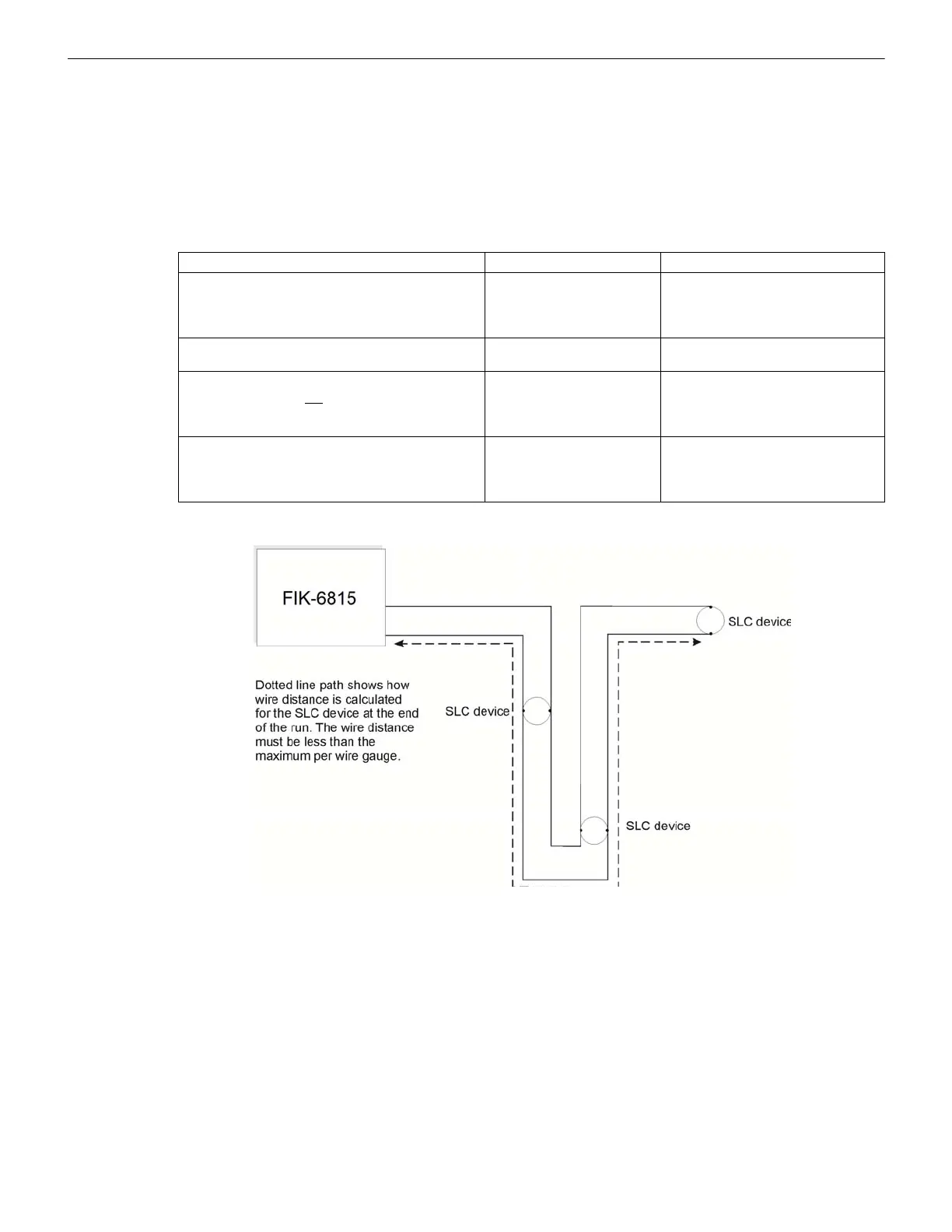
Figure 7.1 and Figure 7.2 show how the wire length is determined for the out and the back tap and T-Tap.
Figure 7.1 Calculating wire run length for a simple out and back
When you use the T-taps, the total length of all taps and the main bus must not exceed 40,000 feet. This requirement must be
met in addition to the maximum distance requirements for the various wire gauges.
Wire Requirements Distance in Feet (meters) Wire Type
RECOMMENDED: Twisted-unshielded pair, 12 to 18
AWG (3.31mm
2
to 0.82 mm
2
). 50 ohms, maximum per
length of Style 6 & 7. 50 ohms per branch maximum for
Style 4 loop.
12,500 ft. (3,810 m)
9,500 ft. (2895.6 m)
6,000 ft. (1,828.8 m)
3,700 ft. (1,127.76 m)
12 AWG (3.31 mm
2
)
14 AWG (2.08 mm
2
)
16 AWG (1.31 mm
2
)
18 AWG (0.82 mm
2
)
Untwisted, unshielded wire, in conduit or outside of
conduit.
5,000 ft. (1,528 m)
3,700 ft. (,127.76 m)
12 to 16 AWG (3.31
2
mm to 1.31 mm
2
)
18 AWG (0.82 mm)
Twisted, shielded pair
Note: Shielded wire is not
recommended for use.
• Shields must be isolated from ground
• Shields should be broken at each device
5,000 ft. (1524 m)
3,700 ft. (1,127.76 m)
12 to 16 AWG (3.31 mm
2
to 1.31 mm
2
)
18 AWG (0.82 mm
2
)
RECOMMENDED: Twisted-unshielded pair, 12 to 18
AWG (3.31mm
2
to 0.82 mm
2
). 50 ohms, maximum per
length of Style 6 & 7. 50 ohms per branch maximum for
Style 4 loop.
12,500 ft. (3,810 m)
9,500 ft. (2895.6 m)
6,000 ft. (1,828.8 m)
3,700 ft. (1,127.76 m)
12 AWG (3.31 mm
2
)
14 AWG (2.08 mm
2
)
16 AWG (1.31 mm
2
)
18 AWG (0.82 mm
2
)
Table 7.2 SLC Wiring Requirements for FikeModules

Table of Contents

Other manuals for Fike FCP-300ECS

Related product manuals