EasyManua.ls Logo

Fike FCP-300ECS - Page 80

Fike FCP-300ECS
175 pages
Print Icon
To Next Page IconTo Next Page
To Next Page IconTo Next Page
To Previous Page IconTo Previous Page
To Previous Page IconTo Previous Page
Loading...
80 FCP-300/FCP-300ECS Manual — P/N LS10145-002FK-E:A 3/12/2021
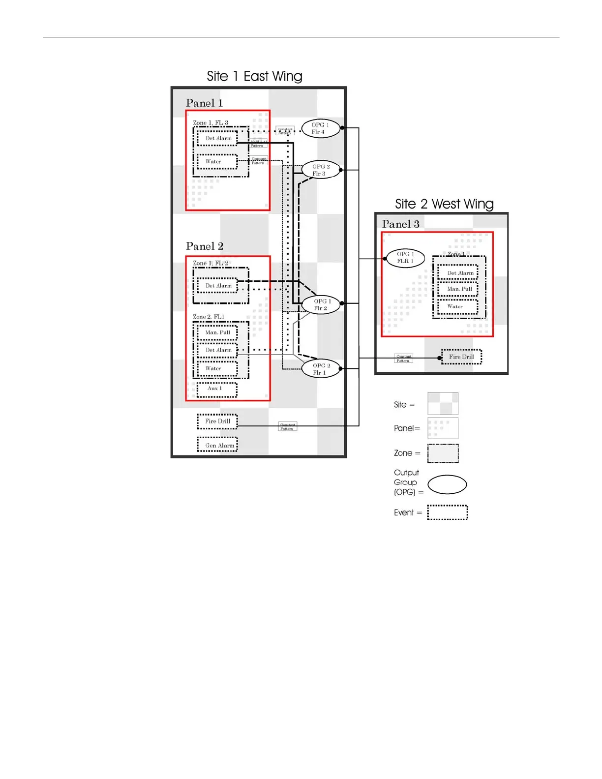
Programming Overview Mapping Overview
Figure 8.6 Example of Events Mapped to the Output Groups and Patterns within a Networked Site

Table of Contents

Other manuals for Fike FCP-300ECS

Related product manuals