EasyManua.ls Logo

Fini RD 185-810 - Page 50

Default Icon
54 pages
Print Icon
To Next Page IconTo Next Page
To Next Page IconTo Next Page
To Previous Page IconTo Previous Page
To Previous Page IconTo Previous Page
Loading...
40069 Zola Predosa (BO) - ITALY
info@finicompressors.it
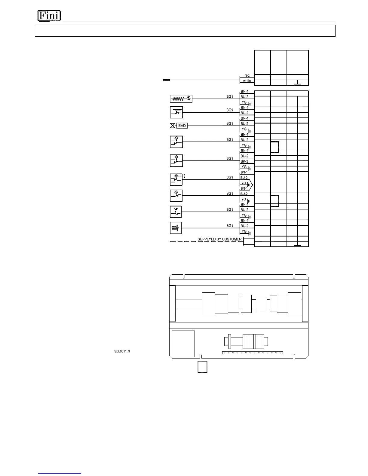
7.3.9 RD 480-810 - DMC14
35
14
TS
COMPRESSOR SUCTION (LOW) SIDE
SAFETY PRESSURE SWITCH
COMPRESSOR DISCHARGE (HIGH) SIDE
SAFETY PRESSURE SWITCH
P
A
P
B
14
13 14
7
6
4
3
2
1
T
E
R
M
I
N
A
L
FAN CONTROL PRESS. SWITCH - LOW SPEED
COMPRESSOR CRANKCASE HEATER
P
V
1
NOT INSTALLED FOR WATER COOLED
R
UKK 5
UKK 5
T
E
R
M
I
N
A
L
12
W
I
R
E
15
12
31
26
T
Y
P
E
8
27
DEW-POINT PROBE
T1
T1 red
white
CONDENSATE DRAIN VALVE
NOT INSTALLED IF OPTIONAL ELECTRONIC DRAINER IS USED
23
5
FAN CONTROL PRESS. SWITCH - HIGH SPEED
NOT INSTALLED FOR WATER COOLED
P
V
2
9
10
-
11
12
22
23
FAN DOOR INTERLOCK SAFETY-SWITCH
BRIDGE IF NOT INSTALLED
S
D
12OPTIONAL - ELECTRONIC LEVEL DRAINER
18
REMOTE ALARM ON INDICATION
TF
Q3
230V - max 1A
1
9
-
2
0
MOUNTING PLATE
T
1
7
-
8
3
-
4
5
-
6
1
-
2
1
7
-
1
8
9
-
1
0
1
1
-
1
2
1
3
-
1
4
1
5
-
1
6
Q2
V1 V2
S
E
Z
A
K
Q1
19
20
12
30
NOT INSTALLED FOR WATER COOLED
FAN THERMAL PROTECTION
T
V
15
16
17

Related product manuals