EasyManua.ls Logo

First Office HEIGHT ADJUSTABLE TABLE - Return Top Assembly; Position Return Top; Check Frame Adjustment; Attach Return Top

Default Icon
13 pages
Print Icon
To Next Page IconTo Next Page
To Next Page IconTo Next Page
To Previous Page IconTo Previous Page
To Previous Page IconTo Previous Page
Loading...
RETURN TOP
ASSEMBLY INSTRUCTIONS
RANGE
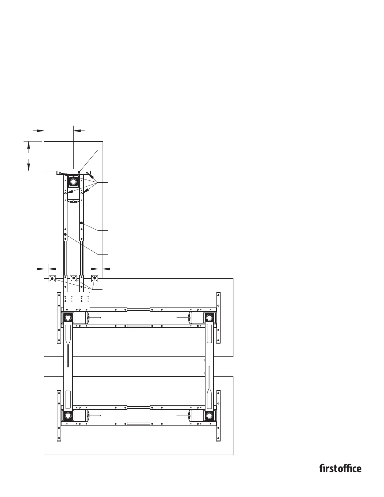
1. Place return top onto the return frame kit butting the end
of the return top to the user side of the worksurface and
aligning the back of the return top to the outer edge of
the worksurface.
2. Check the adjustment of the return frame kit by verifying
that the return top has 9" of overhang and the center of
the frame kit is 9" from the back edge of the return top.
If location is not correct refer back to the return frame kit
instructions for adjustment.
3. Attach the return top to the worksurface with (3) clamp
plates and (12) #8 x 11" pan head wood screws, place the two
outer plates in 1.5" From edge of return top & center the 3rd
plate between the frame end tubes, next secure to the return
frame kit through the strut tube and cross tubes A & B using
(4) #10x7/8 wood screws.
INSTRUCTION SHEET #2580INS
PART #1730537
9
TYP
STRUT TUBE
CROSS TUBE B
CROSS TUBE A
CLAMP PLATES
MOUNTING HOLES
1.5
9 TYP
1.5