EasyManua.ls Logo

Fischer Panda 14000 - Installation Exhaust Water Separator

Fischer Panda 14000
250 pages
Print Icon
To Next Page IconTo Next Page
To Next Page IconTo Next Page
To Previous Page IconTo Previous Page
To Previous Page IconTo Previous Page
Loading...
Installation Instructions
Seite/Page 96 - Kaptitel/Chapter 6: Installation Instructions 18.12.15
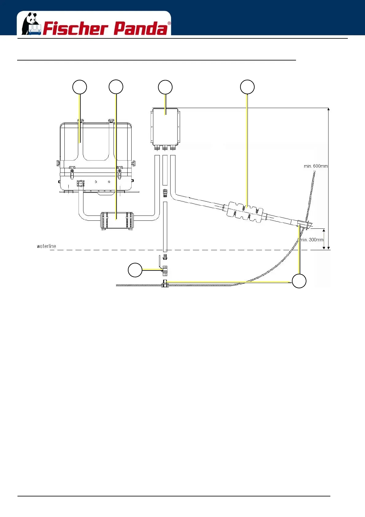
6.12.1 Installation exhaust water separator
Fig. 6.12.1-1: Installation Exhaust Water Separator
If the exhaust water separator was sufficiently highly installed, a goose neck is no longer necessary. The exhaust/
water separator fulfils the same function. If the „Super silent“ exhaust system were installed correctly, the generator
will not disturb your boat neighbour. The exhaust noise should be nearly inaudible. The best result is reached, if the
hose line, which derive the cooling water, is relocate on a short way „falling“ directly to the outlet and this outlet is
under the waterline.
If the through-hull exhaust outlet has to be mounted far from the generator, an exhaust-water separator must
definitely be installed. The raw water from the separator must then run along the shortest possible path in the
through-hull outlet. For such long exhaust routes, the exhaust hose diameter should also be increased, f.e. from
NW40mm to NW50mm in order to reduce the back-pressure. The exhaust may have a length of over 10m (32 ft.) if
the exhaust hose diameter is increased. An additional outlet exhaust muffler close to the hull outlet will help further
to reduce noise emissions.
The generator will not disturb your boat neighbours, if the „Super silent Exhaust System has been correctly installed.
The exhaust noise should be almost inaudible.
1
5
6
2
3
4
1. Generator
2. Silencer / Water lock
3. Exhaust-Water-Separator
4. Silencer
5. Sea cock
6. Hull outlet

Table of Contents

Related product manuals