EasyManua.ls Logo

flamco Midi 225D - Flexfiller Clearance and Connection Requirements

flamco Midi 225D
44 pages
Print Icon
To Next Page IconTo Next Page
To Next Page IconTo Next Page
To Previous Page IconTo Previous Page
To Previous Page IconTo Previous Page
Loading...
www.flamcogroup.com
© 2014 Flamco group. All rights reserved.
We reserve the right to change designs and technical specifications of our products.
Rev 8.1 Aug-15 Page 9 / 44
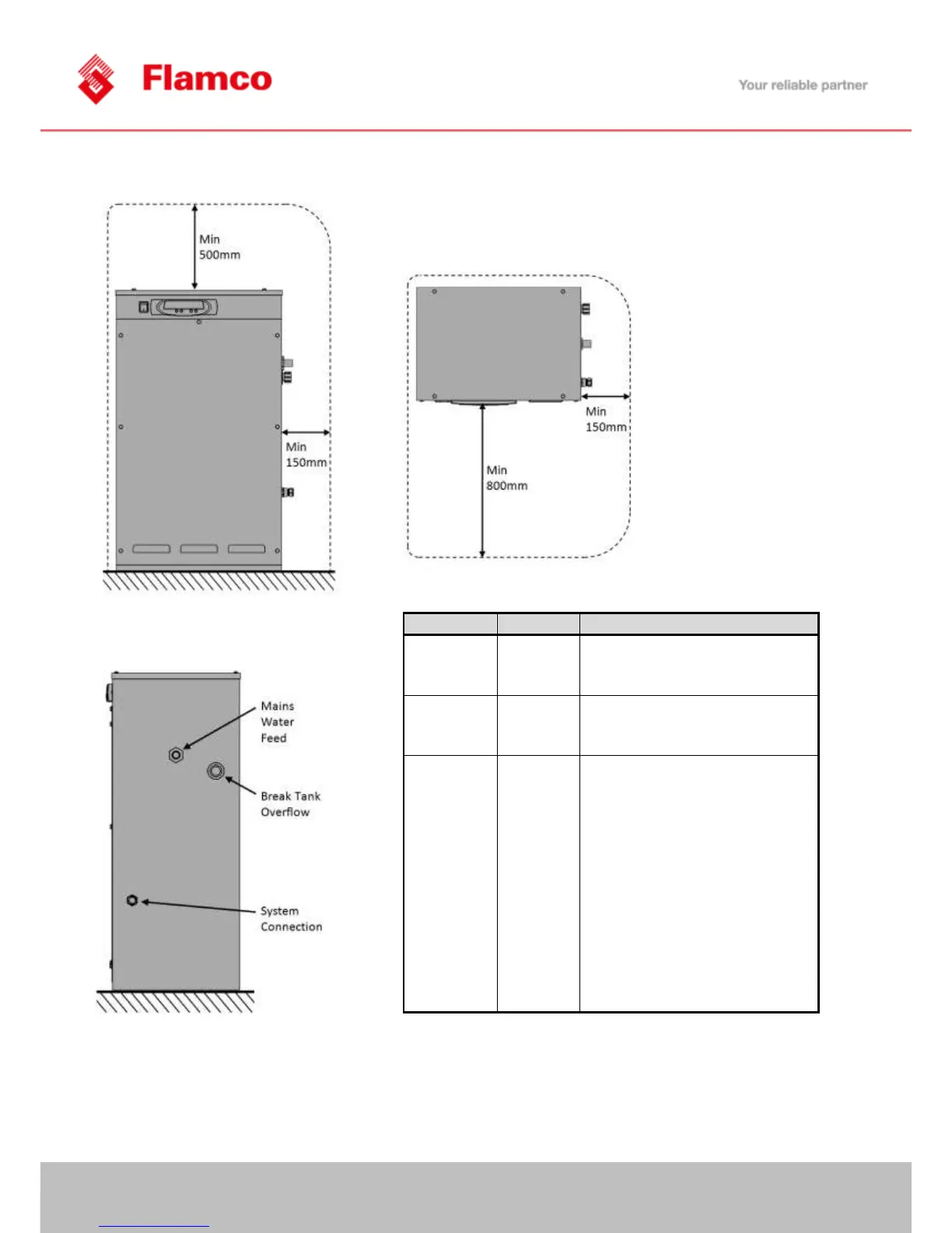
Flexfiller Clearance and Connection Requirements
Connection
Size
Notes
Mains
Water Feed
½” BSP M
An isolation valve must be
installed on the mains water feed
for servicing.
Break Tank
Overflow
22mm
Guidance on drainage
requirements should be obtained
from the local water authority.
System
Connection
½” BSP M
/ 15mm
The pressurisation unit and
expansion vessel should be
connected to the system at the
same point.
The point of connection should
be in the system return, on the
suction side of the circulation
pump.
Non-return valves, pressure
reducing valves and RPZ valves
must not be used.

Related product manuals