EasyManua.ls Logo

FPI P36-NG3 - Wiring Diagram

Default Icon
76 pages
Print Icon
To Next Page IconTo Next Page
To Next Page IconTo Next Page
To Previous Page IconTo Previous Page
To Previous Page IconTo Previous Page
Loading...
FPI P36-3 Zero Clearance Direct Vent Gas Fireplace 41
INSTALLATION
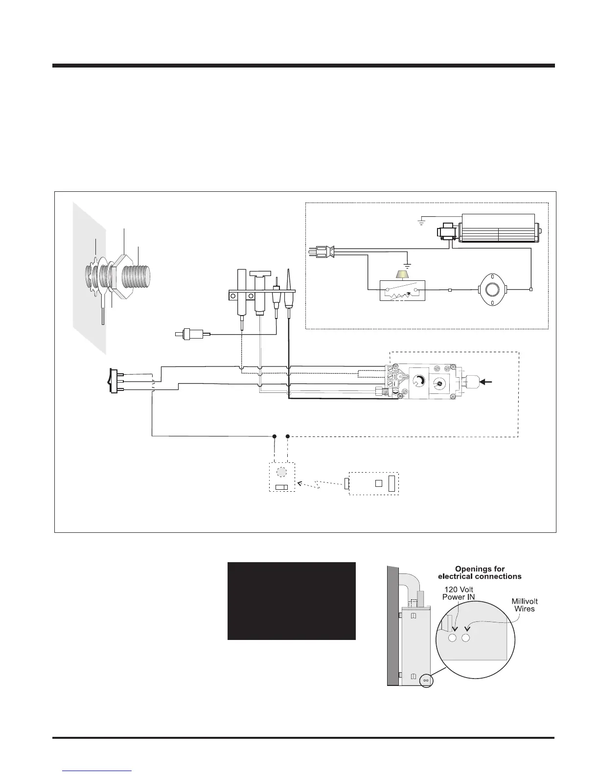
WIRING DIAGRAM
CAUTION: Label all wires
prior to disconnection
when servicing controls.
Wiring errors can cause
improper and dangerous
operation.
This heater does not require a 120V A.C. supply
for operation. In case of a power failure, the
burner switch and the optional remote control/
thermostat will continue to operate. However,
a 120V A.C. power supply is needed for the
fan/blower operation.
(Do not cut the ground terminal off under
any circumstances.)
NOTE: Even if the fan is not purchased
with the unit, it is still a good idea
to bring power to the receptacle
box (provided with the unit) in
case the fan is installed at a later
date.
Caution: Ensure that the wires do
not touch any hot surfaces and are
away from sharp edges.
Ground
Green
Neutral
Live
Black Red Red
Fan Thermodisc
(normally open)
Ground
ON OFF
Rotary Speed
Control
120V AC
60 Hz
Fan
Lockwasher
Fan
ground wire
Nut
#8 Ground Lug
(for mobile home)
Star washer
Piezo
Ignitor
To Thermocouple IN
Pilot
Assembly
H
I
L
O
O
F
F
O
N
P
I
L
O
T
Gas Pilot
Thermopile
Thermocouple
Electrode
Remote Transmitter
(Optional)
ON OFF
Regency
Remote Receiver
or Thermostat
(Millivolt) (Optional)
Brown
Red
T-Stat
Black
White
"S.I.T" Valve
Burner
ON
OFF
Thermostat
(To THTP)
(To TH)
White
Gas
In

Table of Contents

Related product manuals