EasyManua.ls Logo

Franke CE-50 - Page 126

Franke CE-50
128 pages
Print Icon
To Next Page IconTo Next Page
To Next Page IconTo Next Page
To Previous Page IconTo Previous Page
To Previous Page IconTo Previous Page
Loading...
– 126 –
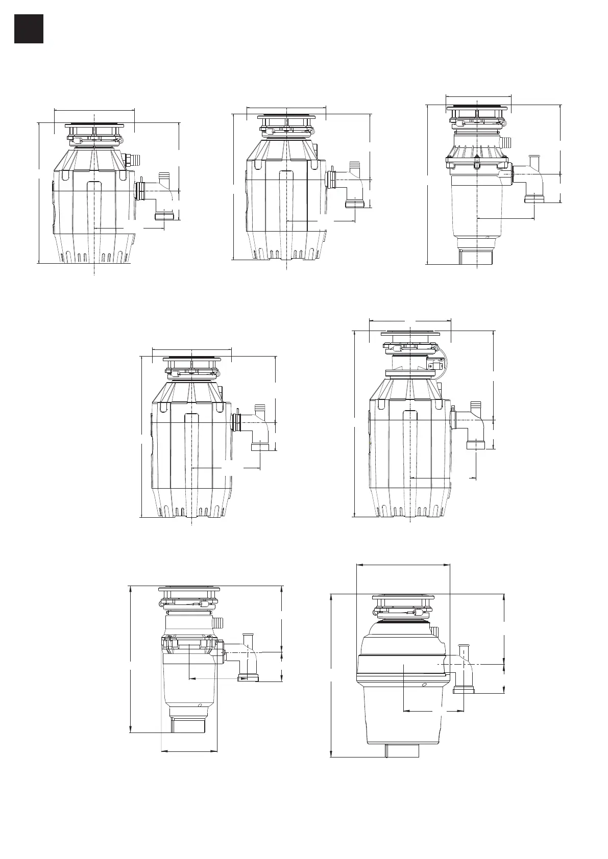
CE-50 / CE-75 / TE-50 / TE-75 / TE-75S / TE-125 / TE-125BF
TR
TE-75
TE-75S
TE-50
TE-125
57-EC05-EC
TE-125BF
386
220
167
70
140
354
132
161
70
137
345
200
167
70
172
406
200
167
70
172
458
200
220
70
172
371
200
167
70
172
386
158
167
70
140

Table of Contents

Related product manuals