EasyManua.ls Logo

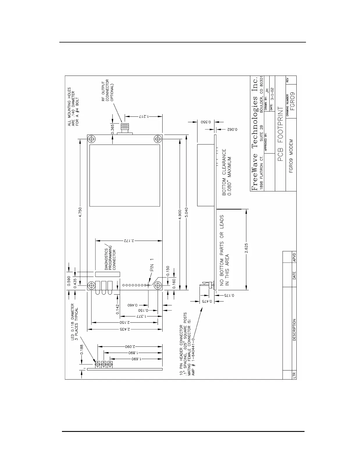
FreeWave FGR09 Series - Oem Board Level Mechanical Drawing

FreeWave FGR09 Series
79 pages
Print Icon
To Previous Page IconTo Previous Page
To Previous Page IconTo Previous Page
Loading...
FreeWave Technologies Spread Spectrum Transceiver User Manual
900 MHz and 2.4 GHz
V5.0S
65
OEM Board Level Mechanical Drawing

Table of Contents

Related product manuals